立即预约 立即预约
免费定制整装家居

免费定制整装家居

一站置家 全程无忧 一省到底
hide.png

当前位置: 首页 > 装修案例效果图 > 万锦香樟树

万锦香樟树 125平 混搭风格效果图

收藏
案例风格 混搭 案例户型 三居 案例面积 125平米
楼盘名称 万锦香樟树 设计师 孟凡玉 案例类型 改善性住宅

设计理念:本案以简洁明快的设计风格,打造了一个对比强烈,质感鲜明的现代居住空间。

客厅
第1张
第2张
第3张
餐厅
第1张
第2张
第3张
卧室
第1张
卫生间
第1张
厨房
第1张
门厅
第1张
过廊
第1张
第2张
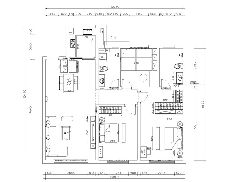
户型图
第1张
  • 案例详情

万锦香樟树-125平-现代混搭风格-客厅 (1).jpg 万锦香樟树-125平-现代混搭风格-客厅 (2).jpg 万锦香樟树-125平-现代混搭风格-首图.jpg

万锦香樟树125平3居室现代混搭风格林凤装饰设计的客厅主要以爵士白大理石为主色调,在地面,厨房等位置大量使用,优雅且端庄。吊顶的设计更是以简单且有创意的造型处理,区别于普通常见的边棚造型,几处个性的顶面造型增添了空间的层次感,更使灯光多元化。

万锦香樟树-125平-现代混搭风格-餐厅 (1).jpg 万锦香樟树-125平-现代混搭风格-餐厅 (2).jpg 万锦香樟树-125平-现代混搭风格-餐厅.jpg

万锦香樟树125平3居室现代混搭风格林凤装饰设计的厨房处为业主重新规划了格局,添加了一道红砖墙体,使得餐厅有独立背景墙,又巧妙的获得了玄关鞋柜的储物空间,颜色上使用了主体色灰蓝,打破了千篇一律的暖色就餐区,使客餐厅整体更加协调统一。

万锦香樟树-125平-现代混搭风格-卧室.jpg

万锦香樟树125平3居室现代混搭风格林凤装饰设计的卧室空间延续了一贯的灰色调,让高级灰展现出它冷静柔和的另一面,照明方面使用了无主灯设计,简约的平棚内嵌了几只柔和的暖光筒灯,错拼的原木色地板让整个空间更加的年轻,灵动。

万锦香樟树-125平-现代混搭风格-卫生间.jpg

万锦香樟树125平3居室现代混搭风格林凤装饰设计的延续了一贯的黑白灰风格,冰冷的理石配以黑色的金属装饰条让卫浴空间看起来更加的整洁,干净,通长的镜箱增加了卫生间的储物,又在视觉上拉伸了相比较小的卫浴空间,照明部分采用了无主灯设计,以暗藏光源漫反射为主要照明

万锦香樟树-125平-现代混搭风格-厨房.jpg

万锦香樟树125平3居室现代混搭风格林凤装饰设计的厨房AB版的橱柜配色设计让厨房空间色彩对比鲜明,在操作台形式上选择了U型橱柜设计,增加厨房收纳,半封闭式的厨房设计可以让房主放心的煎炸任何食材,冰箱安置到厨房与餐厅之间,食材拿取方便,又避免了冰箱沾染油烟。

万锦香樟树-125平-现代混搭风格-玄关 (4).jpg

万锦香樟树125平3居室现代混搭风格林凤装饰设计的玄关

万锦香樟树-125平-现代混搭风格-过廊 (1).jpg 万锦香樟树-125平-现代混搭风格-过廊 (2).jpg

万锦香樟树125平3居室现代混搭风格林凤装饰设计的过廊

万锦香樟树-125平-现代混搭风格-平面.jpg

案例设计师

孟凡玉

设计师:孟凡玉

从业时间:10年

设计理念:好的设计不只是美,它会让人产生美的 感受,它与生活息息相关

预约设计师

算算你家装修多少钱

报名即享丰厚赠品,享半价装修

免费报价
咨询热线:400-656-9909
20190221103704574636.jpg

精品设计案例

20180612134930523248.jpg 服务号二维码.jpg