立即预约 立即预约
免费定制整装家居

免费定制整装家居

一站置家 全程无忧 一省到底
hide.png

当前位置: 首页 > 装修案例效果图 > 荣盛爱家丽都

荣盛爱家丽都 194平 混搭风格效果图

收藏
案例风格 混搭 案例户型 四居 案例面积 194平米
楼盘名称 荣盛爱家丽都 设计师 孟凡玉 案例类型 改善性住宅

设计理念:本案为四房二厅二卫一厨的多层住宅.为一四口之家为依据进行设计,整体风格以简约为主,背景色采用大面积暖色系为主色调,来强调温馨舒适的居所环境。

客厅
第1张
第2张
第3张
第4张
餐厅
第1张
第2张
第3张
卧室
第1张
第2张
卫生间
第1张
门厅
第1张
过廊
第1张
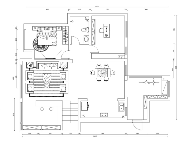
户型图
第1张
  • 案例详情

荣盛爱家郦都-194平-现代混搭风格-客厅 (5).jpg 荣盛爱家郦都-194平-现代混搭风格-客厅 (7).jpg 荣盛爱家郦都-194平-现代混搭风格-客厅 (8).jpg 荣盛爱家郦都-194平-现代混搭风格-首图.jpg

荣盛爱家丽都194平4居室现代混搭风格林凤装饰设计的客厅顶面造型处理方面,选择了硬朗的直线线条为主框架勾勒,局部镶嵌了黑钢金属条呼应了家具和配饰的金属质感,让整个空间灵动又不失沉稳。沙发的选择上选择了较为舒适的转角沙发,可躺可卧,灰色的布面使得整个空间更加沉稳,不抢风头。电视墙选择了米色理石砖作为整体装饰,干练又有一丝低调的奢华,沙发后的组列挂画遥相呼应电视墙与沙发的配色及造型,使整个会客区更加的色彩协调。茶几选择了木色,配合餐桌的原木质感,升华了温馨空间更加的贴近自然。

荣盛爱家郦都-194平-现代混搭风格-餐厅(6).jpg 荣盛爱家郦都-194平-现代混搭风格-餐厅 (1).jpg 荣盛爱家郦都-194平-现代混搭风格-餐厅(10).jpg

荣盛爱家丽都194平4居室现代混搭风格林凤装饰设计的餐桌上的吊灯选择了蜂巢形状的六角造型灯,黑色的金属框成为了整个空间的点缀色,通透型的厨房拉门让餐区和厨房有了更好的互动。

荣盛爱家郦都-194平-现代混搭风格-卧室.jpg 荣盛爱家郦都-194平-现代混搭风格-卧室2.jpg

荣盛爱家丽都194平4居室现代混搭风格林凤装饰设计的卧室采用了对称补齐的方式把不规则的棚面处理规整,使用了低饱和度的颜色让整个空间更加温馨。

荣盛爱家郦都-194平-现代混搭风格-卫生间.jpg

荣盛爱家丽都194平4居室现代混搭风格林凤装饰设计的卫生间更是采用了田园砖运用不规则铺贴的手法,使整个空间更灵动,使得不规则的棚面更具有创造性。

荣盛爱家郦都-194平-现代混搭风格-玄关(4).jpg

荣盛爱家丽都194平4居室现代混搭风格林凤装饰设计的玄关

荣盛爱家郦都-194平-现代混搭风格-过廊(9).jpg

荣盛爱家丽都194平4居室现代混搭风格林凤装饰设计的过廊

荣盛爱家郦都-194平-现代混搭风格-平面图.jpg

案例设计师

孟凡玉

设计师:孟凡玉

从业时间:10年

设计理念:好的设计不只是美,它会让人产生美的 感受,它与生活息息相关

预约设计师

算算你家装修多少钱

报名即享丰厚赠品,享半价装修

免费报价
咨询热线:400-656-9909
20190221103704574636.jpg

精品设计案例

20180612134930523248.jpg 服务号二维码.jpg