立即预约 立即预约
免费定制整装家居

免费定制整装家居

一站置家 全程无忧 一省到底
hide.png

当前位置: 首页 > 装修案例效果图 > 万科金色

万科金色 156平 欧式风格效果图

收藏
案例风格 欧式 案例户型 三居 案例面积 156平米
楼盘名称 万科金色 设计师 孟凡玉 案例类型 改善性住宅

设计理念:简约欧式风格将传统的欧式风格特点,融入到现代化的设计中让简约风格不仅拥有大气,浪漫的氛围,更注意的是更加符合现代人的生活习惯。。

客厅
第1张
第2张
第3张
第4张
餐厅
第1张
卧室
第1张
卫生间
第1张
厨房
第1张
书房
第1张
门厅
第1张
第2张
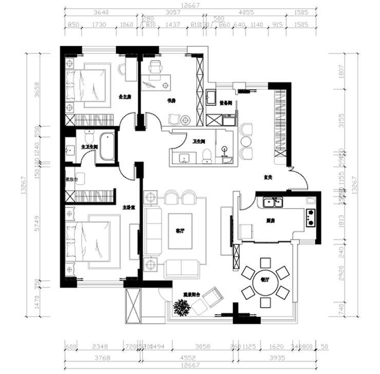
户型图
第1张
  • 案例详情

万科金色-156平.简约欧式.客厅3.jpg 万科金色-156平.简约欧式.客厅1.jpg 万科金色-156平.简约欧式.客厅2.jpg 万科金色-156平.简约欧式.首图.jpg

万科金色156平3居室简欧风格林凤装饰的客厅处实木木线装饰,地面大理石铺贴配理石波打线装饰,很好的把个个区域分别开来。还有一大亮点就是中式的壁纸装饰很好的融合到简欧风格中,同样两个具有文化底蕴的风格恰到好处的混搭一起。

万科金色-156平.简约欧式.餐厅2.jpg

万科金色156平3居室简欧风格林凤装饰的餐厅空间采用实木家具,颜色体积都很厚重,这是男主人的最爱,在简洁明快的餐厅空间更突出体现家具的重要性。

万科金色-156平.简约欧式.主卧室.jpg

万科金色156平3居室简欧风格林凤装饰的卧室空间大气简洁 风格明显 暖色壁纸装饰及拼花实木地板的铺贴,让卧室温馨舒适。

万科金色-156平.简约欧式.卫生间.jpg

万科金色156平3居室简欧风格林凤装饰的卫生间

万科金色-156平.简约欧式.厨房.jpg

万科金色156平3居室简欧风格林凤装饰的厨房为封闭式 算是结合了东方的传统生活习性 更好的去解决油烟的问题及困扰

万科金色-156平.简约欧式.书房.jpg

万科金色156平3居室简欧风格林凤装饰的书房

万科金色-156平.简约欧式.玄关1.jpg 万科金色-156平.简约欧式.玄关2.jpg

万科金色156平3居室简欧风格林凤装饰的玄关

无标题-1.jpg

案例设计师

孟凡玉

设计师:孟凡玉

从业时间:10年

设计理念:好的设计不只是美,它会让人产生美的 感受,它与生活息息相关

预约设计师

算算你家装修多少钱

报名即享丰厚赠品,品质装修

免费报价
咨询热线:400-656-9909
20190221103704574636.jpg

精品设计案例

20180612134930523248.jpg 服务号二维码.jpg