立即预约 立即预约
免费定制整装家居

免费定制整装家居

一站置家 全程无忧 一省到底
hide.png

当前位置: 首页 > 装修案例效果图 > 圣诺园

圣诺园 80平 现代简约风格效果图

收藏
案例风格 现代简约 案例户型 二居 案例面积 80平米
楼盘名称 圣诺园 设计师 林凤装饰设计师 案例类型 改善性住宅

设计理念:现代风格设计,轻奢时尚感,使整体空间更加明快。

客厅
第1张
第2张
第3张
第4张
餐厅
第1张
卧室
第1张
第2张
卫生间
第1张
厨房
第1张
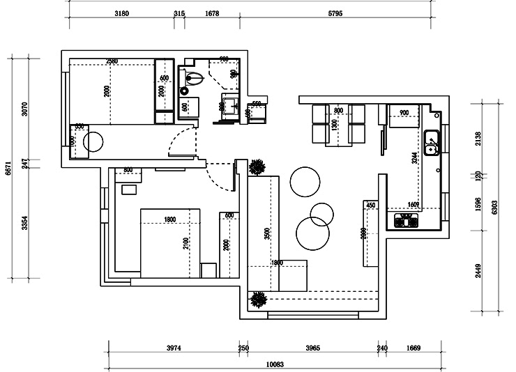
户型图
第1张
  • 案例详情

圣诺园-80平-现代风格-客厅.jpg 圣诺园-80平-现代风格-客厅1.jpg 圣诺园-80平-现代风格-首图.jpg 圣诺园-80平-现代风格-客厅2.jpg

圣诺园80平2居室现代风格林凤装饰的客厅背景墙采用石材和墙板设计结合,样板设计手法中间由玫瑰金收边,与沙发背景一致,棚芯也采用玫瑰金收边,上下呼应现代轻奢更要凸显,空间用了枣红色和墨绿色做为点缀色,使整个空间的气氛更加活跃。

圣诺园-80平-现代风格-餐厅.jpg

圣诺园80平2居室现代风格林凤装饰的餐厅棚顶也是边棚,背景墙也用的是硬包钢条收边处理,颜色上大单使用墨绿色绒布与客厅的靠包呼应一致,体现整体的现代轻奢感。

圣诺园-80平-现代风格-次卧室.jpg 圣诺园-80平-现代风格-主卧.jpg

【次卧室说明】灰蓝色的空间,使人回到家中更好的休息,棚顶做了石膏板叠级石膏线的收边,背景墙采用了硬包及玫瑰金收边,颜色与客厅的更加呼应一体。

圣诺园-80平-现代风格-卫生间.jpg

圣诺园80平2居室现代风格林凤装饰的卫生间灰色的墙砖,玫瑰金的浴屏框体,岩石板洗漱柜收边采用玫瑰金,使卫生间更加时尚与现代感。

圣诺园-80平-现代风格-厨房.jpg

圣诺园80平2居室现代风格林凤装饰的墙面砖选白色色的,橱柜材质门板岩石板,为了更加的凸显层次感选择深色的柜体灰色的台面,使空间上有更好的体现。

圣诺园-80平-现代风格-平面图.jpg

案例设计师

林凤装饰设计师

设计师:林凤装饰设计师

从业时间:10年

设计理念:感受生活品质,设计空间生活。

预约设计师

算算你家装修多少钱

报名即享丰厚赠品,享半价装修

免费报价
咨询热线:400-656-9909
20190221103704574636.jpg

精品设计案例

20180612134930523248.jpg 服务号二维码.jpg