立即预约 立即预约
免费定制整装家居

免费定制整装家居

一站置家 全程无忧 一省到底
hide.png

当前位置: 首页 > 装修案例效果图 > 金辉优步湖畔 轻奢

金辉优步湖畔 轻奢 128平 现代简约风格效果图

收藏
案例风格 现代简约 案例户型 四居 案例面积 128平米
楼盘名称 金辉优步湖畔 设计师 林凤装饰设计师 案例类型 改善性住宅

设计理念:本方案以现代轻奢的风格为主题,墙面运用了硬包墙板造型与地面理石文理的大地砖搭配,让屋内显得奢华低调,合理性的布局空间让功能性最大化。

客厅
第1张
第2张
第3张
第4张
第5张
餐厅
第1张
第2张
卧室
第1张
卫生间
第1张
厨房
第1张
儿童房
第1张
过廊
第1张
第2张
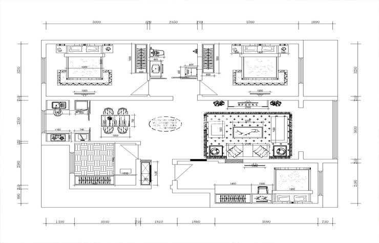
户型图
第1张
  • 案例详情

金辉优步湖畔-128平-现代轻奢风格-电视背景墙.jpg 金辉优步湖畔-128平-现代轻奢风格-客厅.jpg 金辉优步湖畔-128平-现代轻奢风格-客厅1.jpg 金辉优步湖畔-128平-现代轻奢风格-沙发背景墙.jpg 金辉优步湖畔-128平-现代轻奢风格-首图.jpg

金辉优步湖畔128平4居室现代轻奢风格林凤装饰的客厅以高端的爵士白大理石文理背景墙和黑色的钨钢线条框线搭配,让整体客厅空间凸显出高端大气。自然的地面穿边线与棚面的直线边棚和谐呼应,把客厅空间体现和谐统一。

金辉优步湖畔-128平-现代轻奢风格-餐厅.jpg 金辉优步湖畔-128平-现代轻奢风格-餐厅1.jpg

金辉优步湖畔128平4居室现代轻奢风格林凤装饰的餐厅采用米色墙面硬包墙面造型与高贵的皮质餐椅搭配华丽的水晶吊灯,让餐区空间,高贵大气。

金辉优步湖畔-128平-现代轻奢风格-主卧室.jpg

金辉优步湖畔128平4居室现代轻奢风格林凤装饰的卧室的衣柜采用的是橡木饰面板,卧室的墙面采用的是实木护墙板。地面采用的是木地板,让人感到一种很温馨的感觉,很温馨的家。

金辉优步湖畔-128平-现代轻奢风格-卫生间.jpg

金辉优步湖畔128平4居室现代轻奢风格林凤装饰的卫生间洗手盆与墙排坐便一体,让卫生空间无形加大,。简洁的仿古砖和大理石的搭配,显得空间不会那么局促。

金辉优步湖畔-128平-现代轻奢风格-厨房.jpg

金辉优步湖畔128平4居室现代轻奢风格林凤装饰的厨房合理布局,让后期生活更加方便。高贵的黑色瓷砖与仿石材橱柜柜门,让厨房空间也体现高贵。

金辉优步湖畔-128平-现代轻奢风格-女儿房.jpg

金辉优步湖畔128平4居室现代轻奢风格林凤装饰的女儿房

金辉优步湖畔-128平-现代轻奢风格-过廊.jpg 金辉优步湖畔-128平-现代轻奢风格-过廊2.jpg

金辉优步湖畔128平4居室现代轻奢风格林凤装饰的过廊

金辉优步湖畔-128平-现代轻奢风格-平面图.jpg

案例设计师

林凤装饰设计师

设计师:林凤装饰设计师

从业时间:10年

设计理念:设计师不但要引领潮流、还要融入生活

预约设计师

算算你家装修多少钱

报名即享丰厚赠品,享半价装修

免费报价
咨询热线:400-656-9909
20190221103704574636.jpg

精品设计案例

20180612134930523248.jpg 服务号二维码.jpg