立即预约 立即预约
免费定制整装家居

免费定制整装家居

一站置家 全程无忧 一省到底
hide.png

当前位置: 首页 > 装修案例效果图 > 绿城全运村

绿城全运村 100平 现代简约风格效果图

收藏
案例风格 现代简约 案例户型 三居 案例面积 100平米
楼盘名称 绿城全运村 设计师 林凤装饰设计师 案例类型 改善性住宅

设计理念:此案设计中采用的是现代风格,整体色调以深色为主。夫妻二人比较喜欢深的颜色家具,整体想一些干净,简洁,好打理的环境,设计师结合了两个人的喜好 设计了这个现代风格。

客厅
第1张
第2张
第3张
第4张
餐厅
第1张
卧室
第1张
第2张
卫生间
第1张
厨房
第1张
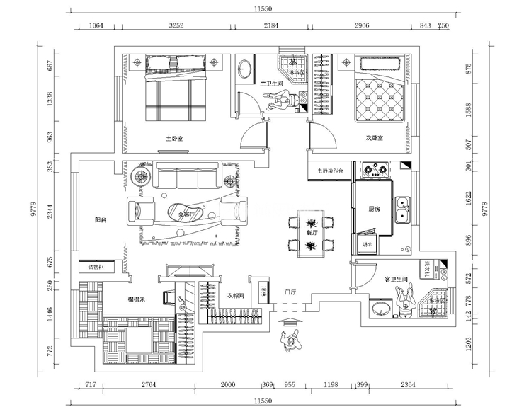
户型图
第1张
  • 案例详情

绿城全运村-100平-现代风格-首图.jpg 绿城全运村-100平-现代风格-电视背景墙.jpg 绿城全运村-100平-现代风格-客厅.jpg 绿城全运村-100平-现代风格-客厅2.jpg

绿城全运村100平3居室现代风格林凤装饰的客厅由于书房那个屋子的格局比较不合理,设计师运用了硬装的设计,把空间划分两部分,一个部分是衣帽间,一部分是书房做的榻榻米。所以客厅的背景墙就突出了特点,在背景墙面出现了两个门口,设计师运用了谷仓门,白色的谷仓门,深色的墙体。突出了背景墙面的特点,在颜色上面也做出了深浅搭配。

绿城全运村-100平-现代风格-餐厅.jpg

绿城全运村100平3居室现代风格林凤装饰的餐厅采用的是黑色的餐桌搭配布艺的餐椅,整体颜色上更加沉稳,由于厨房空间比较有限,所以在餐桌边上做了一个餐边柜,这样增加了不少的储物空间。

绿城全运村-100平-现代风格-客房.jpg 绿城全运村-100平-现代风格-主卧室.jpg

【主卧室说明】卧室整体颜色偏深,采用的是深色皮面床头这样方便清洗和打理,彩色的窗帘让深色的卧室不再单调也不再压抑。床头的长款挂画,让空间视觉上也更加的宽广。

绿城全运村-100平-现代风格-卫生间.jpg

绿城全运村100平3居室现代风格林凤装饰的卫生间墙面也选用了上浅下灰色的瓷砖,让空间视觉上看的卫生间显得很大,洗衣机放在客卫生间里,让使用上面更加合理。黑色的浴室柜搭配白色的坐便,也让卫生间感觉更加干净。

绿城全运村-100平-现代风格-厨房.jpg

绿城全运村100平3居室现代风格林凤装饰的厨房的空间布局上根据人体工程学设计的三角区,冰箱在一进厨房的右手边,烟机在一进厨房的左手边,菜盆在一进厨房的正对面,这样在我们从冰箱拿菜,在洗菜,切菜,炒菜上形成了流水线,让居住者使用上更加合理和方便。

绿城全运村-100平-现代风格-平面图.jpg

案例设计师

林凤装饰设计师

设计师:林凤装饰设计师

从业时间:6年

设计理念:源于生活,生活因设计而改变!

预约设计师

算算你家装修多少钱

报名即享丰厚赠品,享半价装修

免费报价
咨询热线:400-656-9909
20190221103704574636.jpg

精品设计案例

20180612134930523248.jpg 服务号二维码.jpg