立即预约 立即预约
免费定制整装家居

免费定制整装家居

一站置家 全程无忧 一省到底
hide.png

当前位置: 首页 > 装修案例效果图 > 首创国际城

首创国际城 112平 北欧风格效果图

收藏
案例风格 北欧 案例户型 三居 案例面积 112平米
楼盘名称 首创国际城 设计师 林凤装饰精英设计师 案例类型 改善性住宅

设计理念:明确设计思路,放手设计出最适合的方案。

客厅
第1张
第2张
第3张
餐厅
第1张
第2张
卧室
第1张
第2张
卫生间
第1张
第2张
厨房
第1张
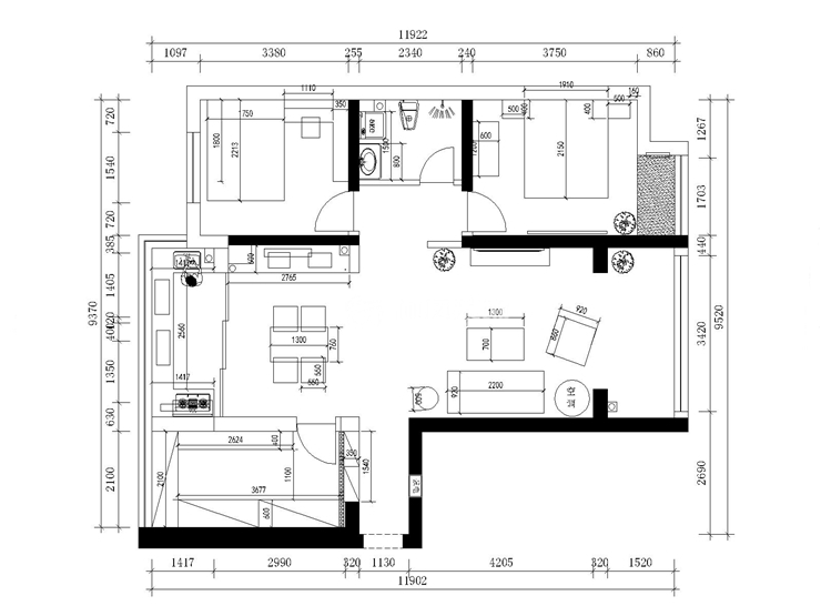
户型图
第1张
  • 案例详情

首创国际城-112平-北欧风格-客厅1.jpg 首创国际城-112平-北欧风格-客厅2.jpg 首创国际城-112平-北欧风格-首图.jpg

首创国际城112平3居室现代风格林凤装饰的客厅整体以浅木色以及白色家具为主,再搭配独具北欧特色的挂画以及地毯,绿植与休闲椅颜色呼应,突出整体感,地毯以及单人位都为明黄色,起到点缀作用。

首创国际城-112平-北欧风格-餐厅1.jpg 首创国际城-112平-北欧风格-餐厅2.jpg

首创国际城112平3居室现代风格林凤装饰的餐厅位置利用墙体做酒柜,面板颜色与餐桌材质相同,整体感强烈,整个餐厅空间在灯光的渲染下更有温馨的感觉。

首创国际城-112平-北欧风格-卧室1.jpg 首创国际城-112平-北欧风格-卧室2.jpg

首创国际城112平3居室现代风格林凤装饰的卧室衣柜以及床选浅木色,搭配浅色清新北欧挂画,显得更温馨,床头背景选用浅粉色,整体空间更加舒适。

首创国际城-112平-北欧风格-卫生间1.jpg 首创国际城-112平-北欧风格-卫生间2.jpg

首创国际城112平3居室现代风格林凤装饰的卫生间空间不是很大,并且没有窗户,对于采光不是很好,所以墙地砖选白色为主,浴室柜选浅色,提升整体空间亮度。

首创国际城-112平-北欧风格-厨房.jpg

首创国际城112平3居室现代风格林凤装饰的厨房长条形,并且采光区较广,所以厨房做推拉门,增加室内采光,也使得厨房与餐厅空间紧密相连。

首创国际城-112平-北欧风格-平面图.jpg

案例设计师

林凤装饰精英设计师

设计师:林凤装饰精英设计师

从业时间:9年

设计理念:艺术充满生活 设计无处不在

预约设计师

算算你家装修多少钱

报名即享丰厚赠品,品质装修

免费报价
咨询热线:400-656-9909
20190221103704574636.jpg

精品设计案例

20180612134930523248.jpg 服务号二维码.jpg