立即预约 立即预约
免费定制整装家居

免费定制整装家居

一站置家 全程无忧 一省到底
hide.png

当前位置: 首页 > 装修案例效果图 > 旭辉东樾城

旭辉东樾城 107平 美式风格效果图

收藏
案例风格 美式 案例户型 三居 案例面积 107平米
楼盘名称 旭辉东樾城 设计师 林凤装饰设计师 案例类型 改善性住宅

设计理念:美式风格,追求舒适自由的家居生活。

客厅
第1张
第2张
餐厅
第1张
卧室
第1张
卫生间
第1张
厨房
第1张
儿童房
第1张
第2张
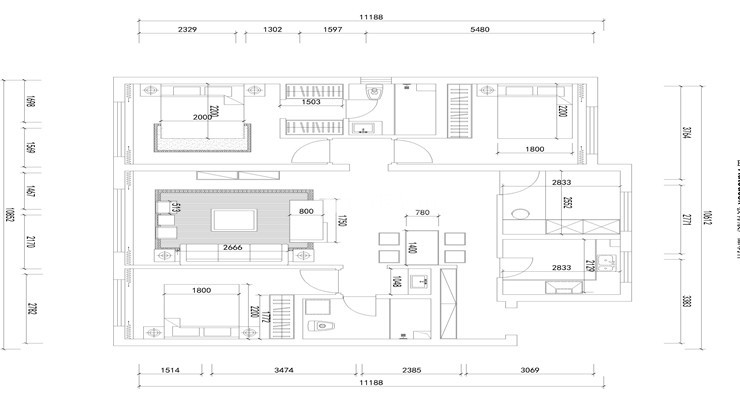
户型图
第1张
  • 案例详情

客厅 (2).jpg 客厅 (4).jpg

旭辉东樾城107平3居室美式风格林凤装饰的客厅用明亮的色彩与家居的沉稳行成对比,稳重又不失年轻的朝气。

餐厅.jpg

旭辉东樾城107平3居室美式风格林凤装饰的餐厅与客厅一体又形成单独的空间色彩基调与客厅一致。

卧室 (3).jpg

【主卧室说明】卧室以白色为主,床头背景主要以颜色搭配简单又有特点。

卫生间.jpg

旭辉东樾城107平3居室美式风格林凤装饰的卧室以白色为主,床头背景主要以颜色搭配简单又有特点。

厨房.jpg

旭辉东樾城107平3居室美式风格林凤装饰的厨房使用实木色的橱柜与客厅的家居进行衔接更有美式的特色。

卧室 (1).jpg 卧室 (2).jpg

旭辉东樾城107平3居室美式风格林凤装饰的女儿房采用少女的粉色搭配白色与浅蓝色让空间更加干净整洁。

平面布局.jpg

案例设计师

林凤装饰设计师

设计师:林凤装饰设计师

从业时间:11年

设计理念:处处是细节的家,应该处处用心

预约设计师

算算你家装修多少钱

报名即享丰厚赠品,品质装修

免费报价
咨询热线:400-656-9909
20190221103704574636.jpg

精品设计案例

20180612134930523248.jpg 服务号二维码.jpg