立即预约 立即预约
免费定制整装家居

免费定制整装家居

一站置家 全程无忧 一省到底
hide.png

当前位置: 首页 > 装修案例效果图 > 金地悦时光

金地悦时光 86平 现代简约风格效果图

收藏
案例风格 现代简约 案例户型 二居 案例面积 86平米
楼盘名称 金地悦时光 设计师 林凤设计师 案例类型 改善性住宅

设计理念:本案是现代设计风格,温馨,浪漫,温和令空间充满现代新青年的干劲和亲和力!不拘一格的色彩搭配体现当代新风格摆脱老旧装潢的束缚,体现出当下新青年的工作和生活的新气象。

客厅
第1张
第2张
第3张
第4张
餐厅
第1张
卧室
第1张
第2张
卫生间
第1张
厨房
第1张
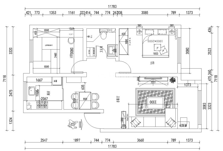
户型图
第1张
  • 案例详情

金地悦时光-86平-现代风格--首图.jpg 金地悦时光-86平-现代风格-客厅1.jpg 金地悦时光-86平-现代风格-客厅2.jpg 金地悦时光-86平-现代风格-客厅3.jpg

金地悦时光86平2居室现代风格林凤装饰的沙发背景墙运用米色的硅藻泥,即简洁而不简单,又环保且特点明晰,高冷的微晶地砖是客户特别指定的,根据对色彩搭配的理解,设计师选择出了家具的款式,沙发背景墙选用两幅大挂画做造型,让整个客厅形成一个整体,颜色有进有出。

金地悦时光-86平-现代风格-餐厅.jpg

金地悦时光86平2居室现代风格林凤装饰的餐厅空间并不大,但是该区域的主轴是那副背景墙挂画,是整个空间灵动起来,为吃饭的过程中增添了许多享受感,使吃饭不再单调。

金地悦时光-86平-现代风格-榻榻米室.jpg 金地悦时光-86平-现代风格-主卧.jpg

【主卧室说明】卧室简单做了现代双眼皮石膏线,床头特别放置了两张现代带些轻奢感的画品,灰色的窗帘和白色的纱帘,使得整个空间现代感十足且说明卧室主人的低调内涵。

金地悦时光-86平-现代风格-卫生间.jpg

金地悦时光86平2居室现代风格林凤装饰的卫生间客户选择了颜色较深的地面砖,即防滑且藏脏,非常适合现代都市上班族,马桶边的置物架,即实用且使得整个空间视觉的满足。

金地悦时光-86平-现代风格-厨房.jpg

金地悦时光86平2居室现代风格林凤装饰的厨房运用AB色吸塑橱柜,灰白瓷砖显得厨房很有高贵的气质,让厨房与客厅的深相得益彰。

金地悦时光-86平-现代风格-平面图.jpg

案例设计师

林凤设计师

设计师:林凤设计师

从业时间:7年

设计理念:设计源于生活,生活映与本性

预约设计师

算算你家装修多少钱

报名即享丰厚赠品,享半价装修

免费报价
咨询热线:400-656-9909
20190221103704574636.jpg

精品设计案例

20180612134930523248.jpg 服务号二维码.jpg