立即预约 立即预约
免费定制整装家居

免费定制整装家居

一站置家 全程无忧 一省到底
hide.png

当前位置: 首页 > 装修案例效果图 > 月星中央公园

月星中央公园 104平 新中式风格效果图

收藏
案例风格 新中式 案例户型 三居 案例面积 104平米
楼盘名称 月星中央公园 设计师 林凤装饰设计师 案例类型 改善性住宅

设计理念:当禅意的新中式遇到莫兰迪系色彩,让原本平静的空间起了一丝波澜,犹如夏日里的蝉鸣,响亮却不突兀。

客厅
第1张
第2张
餐厅
第1张
卧室
第1张
第2张
第3张
第4张
卫生间
第1张
第2张
厨房
第1张
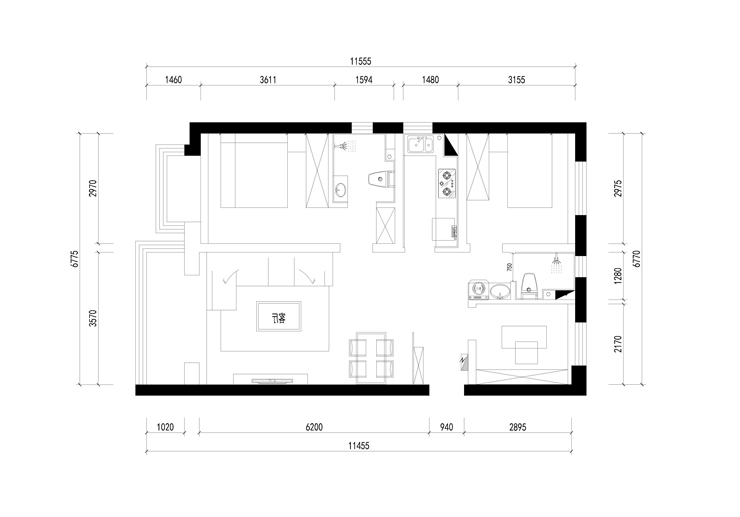
户型图
第1张
  • 案例详情

月星中央公园-104平-新中式-首图.jpg 月星中央公园-104平-新中式-客厅-(2).jpg

月星中央公园104平3居室新中式风格林凤装饰的客厅摒弃复杂的顶面设计,运用简洁的现代感角线作为顶立面的交接,很好的分割空间,配合简约中式家具轻松勾勒出中式画面的空间。

月星中央公园-104平-新中式-餐厅.jpg

月星中央公园104平3居室新中式风格林凤装饰的餐厅

月星中央公园-104平-新中式次卧室.jpg 月星中央公园-104平-新中式-客厅-(2).jpg 月星中央公园-104平-新中式-卧室-(1).jpg 月星中央公园-104平-新中式-卧室-(2).jpg

主卧室说明:跳跃的蓝色壁纸背景墙,在原木的家具搭配下欢快又不失整体。浅色的地板显得干净整洁,整个空间很温馨

月星中央公园-104平-新中式-卫生间-(1).jpg 月星中央公园-104平-新中式-卫生间-(2).jpg

月星中央公园104平3居室新中式风格林凤装饰的卫生间运用暖灰色调的墙砖强化卫浴空间的整体性。深色的浴室柜显得很沉稳,白的的马桶简洁提亮。

月星中央公园-104平-新中式-厨房.jpg

月星中央公园104平3居室新中式风格林凤装饰的厨房大纹理的墙面瓷砖增加了空间的延展性,与红木色整体定制橱柜相得益彰,让空间明净且具有超强的质感。

月星中央公园-104平-新中式-平面图.jpg

案例设计师

林凤装饰设计师

设计师:林凤装饰设计师

从业时间:11年

设计理念:用艺术的心去生活,用生活的智慧去完善升华艺术!

预约设计师

算算你家装修多少钱

报名即享丰厚赠品,享半价装修

免费报价
咨询热线:400-656-9909
20190221103704574636.jpg

精品设计案例

20180612134930523248.jpg 服务号二维码.jpg