立即预约 立即预约
免费定制整装家居

免费定制整装家居

一站置家 全程无忧 一省到底
hide.png

当前位置: 首页 > 装修案例效果图 > 中海寰宇天下

中海寰宇天下 130平 轻奢风格效果图

收藏
案例风格 轻奢 案例户型 三居 案例面积 130平米
楼盘名称 中海寰宇天下 设计师 林凤设计师 案例类型 改善性住宅

设计理念:现代轻奢风格,是很多年轻人追求的时尚感觉,也是现在比较流行的装修风格。现代轻奢以简约的基础造型为表现形式,主要衬托美观、高品质的家具和软装产品。它主要通过家具、灯具、背景墙、后期配饰等软装的元素,来体现轻奢风格的低调奢华有内涵。注重设计感,每一件东西都有他存在的价值和意义,缺一不可。
本案业主为一对年轻人,作为婚房。选择了现代轻奢的风格更能突出本案业主的高贵品质。他们厌倦了快节奏的都市生活,希望回到家能够轻松、愉悦。因此本案主要突出低调和轻奢,整体色调以黑白灰为主,外加明亮的黄色,和金属的材质,使得整体空间变得低调的奢华,展示着精致高端的生活态度。

客厅
第1张
第2张
第3张
餐厅
第1张
第2张
卧室
第1张
卫生间
第1张
厨房
第1张
过廊
第1张
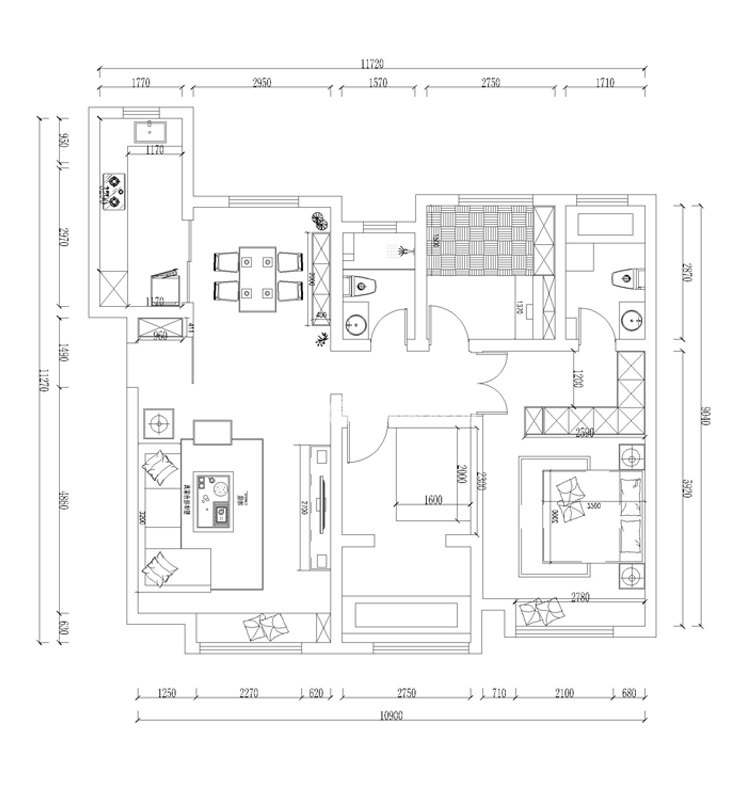
户型图
第1张
  • 案例详情

中海寰宇天下-130平-现代轻奢风格-客厅1.jpg 中海寰宇天下-130平-现代轻奢风格-客厅2.jpg 中海寰宇天下-130平-现代轻奢风格-首图.jpg

中海寰宇天下130平3居室现代轻奢风格林凤装饰的客厅整体墙面以灰色为主,电视墙采用石材做造型,突出整个空间的亮点,让人一看就有一种耳目一新的感觉,外加金属条的衬托,和软装的搭配,完全诠释出了什么是低调奢华有内涵。

中海寰宇天下-130平-现代轻奢风格-餐厅.jpg 中海寰宇天下-130平-现代轻奢风格-餐厅2.jpg

中海寰宇天下130平3居室现代轻奢风格林凤装饰的餐厅是一个独立的空间,与客厅紧密相连,整体风格跟客厅相呼应,增加了空间感。餐厅做了一个相对大的酒柜,既可以储物,又起到装饰性的作用,是餐厅的点睛之笔。

中海寰宇天下-130平-现代轻奢风格-主卧室.jpg

中海寰宇天下130平3居室现代轻奢风格林凤装饰的卧室空间体现大气温馨,呼应客厅风格。整体色调为灰色,体现出了卧室的宁静,外加蓝色的点缀,活泼了整体的气氛,使整个空间宁静却不压抑,从而会有更加充足的睡眠。

中海寰宇天下-130平-现代轻奢风格-卫生间.jpg

中海寰宇天下130平3居室现代轻奢风格林凤装饰的卫生间

中海寰宇天下-130平-现代轻奢风格-厨房.jpg

中海寰宇天下130平3居室现代轻奢风格林凤装饰的厨房为封闭式,禁止油烟向外跑。木纹色的饰面板体现空间的大气,上下AB版的颜色既美观又充满了实用性。L型的大空间橱柜,外加镶嵌电器的高柜,使得储物空间更加充足。

中海寰宇天下-130平-现代轻奢风格-走廊.jpg

中海寰宇天下130平3居室现代轻奢风格林凤装饰的走廊

中海寰宇天下-130平-现代轻奢风格-户型图.jpg

案例设计师

林凤设计师

设计师:林凤设计师

从业时间:8年

设计理念:因生活而设计,因设计而美好,让你的生活环境,成为他人眼中风景。

预约设计师

算算你家装修多少钱

报名即享丰厚赠品,品质装修

免费报价
咨询热线:400-656-9909
20190221103704574636.jpg

精品设计案例

20180612134930523248.jpg 服务号二维码.jpg