立即预约 立即预约
免费定制整装家居

免费定制整装家居

一站置家 全程无忧 一省到底
hide.png

当前位置: 首页 > 装修案例效果图 > 其仕盛和祥

其仕盛和祥 87平 现代简约风格效果图

收藏
案例风格 现代简约 案例户型 二居 案例面积 87平米
楼盘名称 其仕盛和祥 设计师 郑婷婷 案例类型 改善性住宅

设计理念:房间整体选用比较鲜艳的颜色,使房间整体看上去更加温馨明亮,房子为两居室,由于次卧空间较小,所以为了节省空间次卧选择制作榻榻米。

客厅
第1张
第2张
第3张
餐厅
第1张
卧室
第1张
第2张
卫生间
第1张
第2张
厨房
第1张
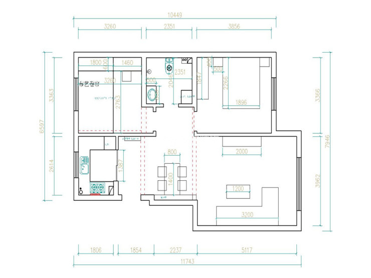
户型图
第1张
  • 案例详情

其仕盛和祥-87平-现代风格-客厅1.jpg 其仕盛和祥-87平-现代风格-客厅2.jpg 其仕盛和祥-87平-现代风格-首图.jpg

其仕盛和祥87平2居室现代风格林凤装饰的客厅选用布艺沙发提升空间整体质量和效果,沙发背景墙选用暖黄色墙纸,使空间刚有质感。电视背景墙选用灰色,与黄色墙纸呼应。

其仕盛和祥-87平-现代风格-餐厅.jpg 其仕盛和祥-87平-现代风格-榻榻米.jpg 其仕盛和祥-87平-现代风格-主卧.jpg

【主卧说明】主卧室选用女主人最喜欢的蓝色壁纸提升房间整体效果,搭配粉色窗帘使房间变得更适合年轻人居住。【榻榻米说明】房主为年轻夫妇,近几年打算要孩子,所以榻榻米房间只做简单的搭配,方便以后布置为儿童房。

其仕盛和祥-87平-现代风格-卫生间1.jpg 其仕盛和祥-87平-现代风格-卫生间2.jpg

其仕盛和祥87平2居室现代风格林凤装饰的卫生间选用深灰色地砖搭配浅灰色墙砖,使卫生间看起来干净好打理。洗衣机上方定制上柜,增加储物功能。

其仕盛和祥-87平-现代风格-厨房.jpg

其仕盛和祥87平2居室现代风格林凤装饰的厨房采用拉门,防止油烟。厨房橱柜选用白色,使整体厨房空间显得更加宽敞明亮。白色橱柜与黑色台板相互搭配。

其仕盛和祥-87平-现代风格-户型图.jpg

案例设计师

郑婷婷

设计师:郑婷婷

从业时间:9年

设计理念:用心与住宅对话,交织出住宅中的灵魂所属

预约设计师

算算你家装修多少钱

报名即享丰厚赠品,享半价装修

免费报价
咨询热线:400-656-9909
20190221103704574636.jpg

精品设计案例

20180612134930523248.jpg 服务号二维码.jpg