立即预约
免费定制整装家居
一站置家 全程无忧 一省到底
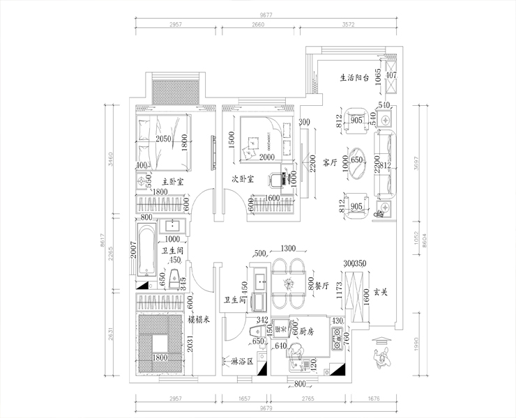
设计理念:龙湖西府原著115平3居室现代风格林凤装饰的以黑胡桃木色主题的色彩,以现代化为中心设计,打造全新的现代简约风格。
案例详情
龙湖西府原著115平3居室现代风格林凤装饰的客厅要求室内色调具有同一的丰富性,需要在空间内看到功能性,造型线条简约流畅。体现到现代得风格得简约,大气,稍稳重一些得整体感觉。
龙湖西府原著115平3居室现代风格林凤装饰的餐厅搭配主体黑、白色的餐桌,黑色胡桃色椅子以及墙面黄灰相间装饰画来体现功能分区的色彩统一性、和谐性的设计效果。在满足空间实用性的前提下又满足了其美观性。棚面选用石膏板叠级线与灰色乳胶漆相互搭配,体现餐厅与整个空间的和谐统一。
【主卧室说明】卧室使用咖色、深灰色的软装配饰以及黑皮质家具为主,墙用灰色装饰挂画以及白色乳胶漆,体现其现代不失典雅的空间氛围,相对更舒适。使其空间兼备和谐、舒适、稳重的特点,体现出现代风格的简洁、大气。空间中使用的材质以及色调显示出主人的喜好与品味。
龙湖西府原著115平3居室现代风格林凤装饰的卫生间干湿分离,地面使用同客厅一样得大瓷砖,墙面使用浅咖色墙砖来体现地面与墙面的区别以及增加空间的立体感,洗手盆整体定制和洗衣机完全融为一体,使得空间无死角,整体得镜前灯加上上下虚光大大得增加干区卫生间得空间。
龙湖西府原著115平3居室现代风格林凤装饰的厨房墙选用浅灰白色一点瓷砖、白色吸塑橱柜与暖浅咖色的石材台面相结合,拓展其空间视觉效果。显示其明亮大气又不失现代风格简单大气的韵味。
龙湖西府原著115平3居室现代风格林凤装饰的玄关
龙湖西府原著115平3居室现代风格林凤装饰的过廊
精品设计案例
设计说明:
三室两厅一厨两卫,高层整体采用美式风格,色调以深色为主,体现美式的居家感和温馨感。
设计说明:
本案业主为年轻时尚小两口,所以我们考虑到未来想要给未来宝宝一个温馨舒适的一个房间,所以本案整体采用现代风格的手法,运用颜色,来打造整体空间的设计感及时尚感
设计说明:
本案以北欧风格为主题的设计,北欧风格能以现代、简洁、自然的特点俘获人心,所营造出来的生活氛围会让人倍感舒适与自在。
设计说明:
客户是一名成功人士,对于家的执念就是简单干净,客户衣服比较多,所以把每个空间都做了大衣柜,并且融入到设计里