立即预约 立即预约
免费定制整装家居

免费定制整装家居

一站置家 全程无忧 一省到底
hide.png

当前位置: 首页 > 装修案例效果图 > 凯旋门

凯旋门 167平 新中式风格效果图

收藏
案例风格 新中式 案例户型 五居 案例面积 167平米
楼盘名称 凯旋门 设计师 林凤装饰设计师 案例类型 改善性住宅

设计理念:凯旋门167平平层新中式风格林凤装饰主要设计出发点主要是已中式元素融入现代的金属感结合。

客厅
第1张
第2张
第3张
餐厅
第1张
第2张
卧室
第1张
第2张
厨房
第1张
第2张
第3张
书房
第1张
儿童房
第1张
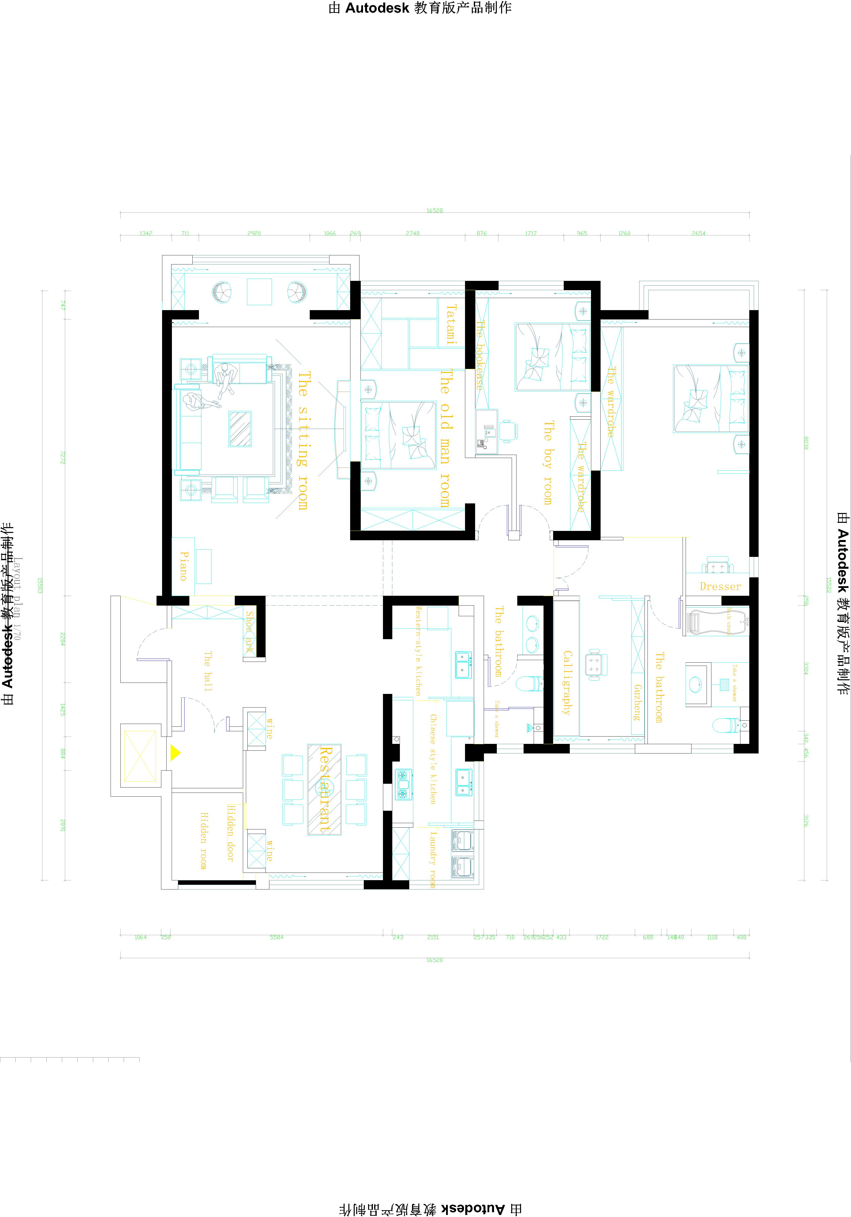
户型图
第1张
  • 案例详情

s2-安娜-凯旋门-167㎡ (客厅背景).jpg s2-安娜-凯旋门- 167㎡(客厅背景墙)首图.jpg s2-安娜-凯旋门- 167㎡(客餐厅).jpg

凯旋门167平平层新中式风格林凤装饰的客厅部分主要以 理石加上纯色壁纸地面灰色系.突出静的感觉。

s2-安娜-凯旋门- 167㎡(餐厅背景).jpg s2-安娜-凯旋门- 167㎡(餐厅门头背景).jpg

凯旋门167平平层新中式风格林凤装饰的餐厅部分为多功能区域 餐厅背景墙柜体内 隐藏门 通往 暗室 整体感觉禅意。

s2-安娜-凯旋门- 167㎡(老人房).jpg s2-安娜-凯旋门-167㎡ (主卧室).jpg

【主卧室说明】主卧室部分为女主人多用途空间.除了增加储物空间外又满足了功能性.增加了 书法空间 与健身瑜伽空间。【次卧室说明】次卧 空间主要是老人偶尔来居住的空间,墙面的柜子增加储物.全屋以满足老人日常生活为主。

s2-安娜-凯旋门- 167㎡(厨房).jpg s2-安娜-凯旋门- 167㎡(厨房洗衣间).jpg s2-安娜-凯旋门- 167㎡(西厨).jpg

凯旋门167平平层新中式风格林凤装饰的厨房整体设计主要是满足女主人的中西厨要求.嵌入式电器日常烘焙.外阳台空间利用主要是洗衣间空间。

s2-安娜-凯旋门- 167㎡(主卧室书房).jpg

凯旋门167平平层新中式风格林凤装饰的书房

s2-安娜-凯旋门-167㎡ (儿童房).jpg

凯旋门167平平层新中式风格林凤装饰的儿童房

s2-安娜-凯旋门- 167㎡.jpg

案例设计师

林凤装饰设计师

设计师:林凤装饰设计师

从业时间:6年

设计理念:Less is more.

预约设计师

算算你家装修多少钱

报名即享丰厚赠品,享半价装修

免费报价
咨询热线:400-656-9909
20190221103704574636.jpg

精品设计案例

20180612134930523248.jpg 服务号二维码.jpg