立即预约 立即预约
免费定制整装家居

免费定制整装家居

一站置家 全程无忧 一省到底
hide.png

当前位置: 首页 > 装修案例效果图 > 保利大都会

保利大都会 94平 北欧风格效果图

收藏
案例风格 北欧 案例户型 二居 案例面积 94平米
楼盘名称 保利大都会 设计师 王松 案例类型 改善性住宅

设计理念:保利大都会94平2居室装修风格定位为北欧风格,源于北欧瑞典地区,是改进型北欧风格,融合了很多现代元素,保留了北欧风的天然材质和线条简洁性。

客厅
第1张
第2张
第3张
第4张
餐厅
第1张
卧室
第1张
第2张
卫生间
第1张
厨房
第1张
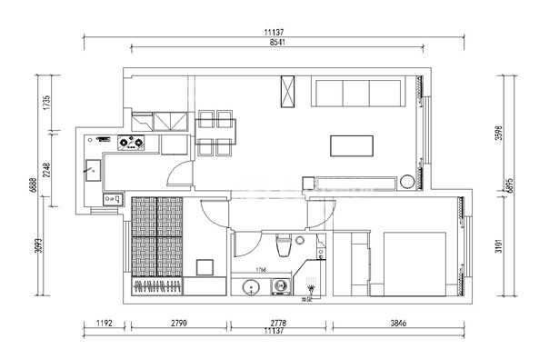
户型图
第1张
  • 案例详情

保利大都会-94平-北欧风格-客厅 (1).jpg 保利大都会-94平-北欧风格-客厅 (3).jpg 保利大都会-94平-北欧风格-客厅 (4).jpg 保利大都会-94平-北欧风格-客厅.jpg

保利大都会94平2居室北欧风格林凤装饰的客厅的沙发是设计师与业主以舒适性为主的基础上,再考虑材质、颜色和尺寸,经过多项选择的,因为举架的原因,没有进行吊棚,但是在电视背景墙和沙发背景墙上都装有滑道灯,增加辅助灯光。

保利大都会-94平-北欧风格-客厅 (2).jpg

保利大都会94平2居室北欧风格林凤装饰的餐厅

保利大都会-94平-北欧风格-主卧室  (1).jpg 保利大都会-94平-北欧风格-主卧室  (2).jpg

保利大都会94平2居室北欧风格林凤装饰的主卧室比较小,房子的女主人特别喜欢衣帽间。所以和客户进行反复沟通之后,设计了一个半步入室衣帽间,完成了女主人的需求。

保利大都会-94平-北欧风格-卫生间.jpg

保利大都会94平2居室北欧风格林凤装饰的洗衣机和洗漱盆做的定制整体,使用空间增大,淋浴区安装了浴屏进行了干湿分离的设计,还是以黑和灰色做搭配。

保利大都会-94平-北欧风格-厨房.jpg

保利大都会94平2居室北欧风格林凤装饰的厨房都是采用布纹纹理的饰面板,配爵士白墙砖,整体打造一个干净立正的厨房空间。

平面图.jpg

案例设计师

王松

设计师:王松

从业时间:10年

设计理念:品味生活,从家开始

预约设计师

算算你家装修多少钱

报名即享丰厚赠品,享半价装修

免费报价
咨询热线:400-656-9909
20190221103704574636.jpg

精品设计案例

20180612134930523248.jpg 服务号二维码.jpg