立即预约 立即预约
免费定制整装家居

免费定制整装家居

一站置家 全程无忧 一省到底
hide.png

当前位置: 首页 > 装修案例效果图 > 中海城尚城

中海城尚城 140平 现代简约风格效果图

收藏
案例风格 现代简约 案例户型 三居 案例面积 140平米
楼盘名称 中海城尚城 设计师 李雪 案例类型 改善性住宅

设计理念:用有限的空间做无限的设计。

客厅
第1张
第2张
餐厅
第1张
卧室
第1张
第2张
卫生间
第1张
第2张
厨房
第1张
衣帽间
第1张
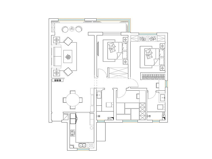
户型图
第1张
  • 案例详情

中海城尚城-140平-轻奢风格-客厅1.jpg 中海城尚城-140平-轻奢风格-客厅2.jpg

中海城尚城140平3居室现代风格林凤装饰的客厅我们采用灰色系的瓷砖地面,沙发选择的很大气也很大胆,比较像太空椅,沙发后的挂画体现非常的奢侈绿色与金黄色的线条相融合,棚顶做了吊棚带筒灯,这样墙面与天棚交相辉映。

中海城尚城-140平-轻奢风格-餐厅.jpg

中海城尚城140平3居室现代风格林凤装饰的餐厅空间较大,把餐桌放置中间这样既有美观性还可以增加通过的空间。餐桌旁摆放餐边柜和酒柜,变得更加方便,餐椅粉色与蓝色的搭配也很新颖。

中海城尚城-140平-轻奢风格-次卧.jpg 中海城尚城-140平-轻奢风格-榻榻米.jpg

中海城尚城140平3居室现代风格林凤装饰的卧室空间较大并且屋内还有飘窗,整体衣柜,增加了储物空间,还为主人的衣物进行规划。

中海城尚城-140平-轻奢风格-次卫.jpg 中海城尚城-140平-轻奢风格-主卫.jpg

中海城尚城140平3居室现代风格林凤装饰的卫生间采用了干湿分离,淋浴区还设有墙体暗格,并且合理的放置了洗手台。

中海城尚城-140平-轻奢风格-首图.jpg

中海城尚城140平3居室现代风格林凤装饰的厨房的面积较大,做了一种经典式的L型橱柜,柜板颜色采用了双拼色,厨房墙砖采用白色系,整体感觉简洁大方。

中海城尚城-140平-轻奢风格-衣帽间.jpg

中海城尚城140平3居室现代风格林凤装饰的衣帽间设立了一整排衣柜,不仅美观还增加了储物空间,衣帽间里还有梳妆台,非常合理的规划了布局

中海城尚城-140平-轻奢风格-户型图.jpg

案例设计师

李雪

设计师:李雪

从业时间:6年

设计理念:设计源于生活,而又升华于生活。

预约设计师

算算你家装修多少钱

报名即享丰厚赠品,享半价装修

免费报价
咨询热线:400-656-9909
20190221103704574636.jpg

精品设计案例

20180612134930523248.jpg 服务号二维码.jpg