立即预约 立即预约
免费定制整装家居

免费定制整装家居

一站置家 全程无忧 一省到底
hide.png

当前位置: 首页 > 装修案例效果图 > 群升新天地

群升新天地 110平 现代简约风格效果图

收藏
案例风格 现代简约 案例户型 二居 案例面积 110平米
楼盘名称 群升新天地 设计师 林凤装饰设计师 案例类型 改善性住宅

设计理念:群升新天地110平2居室现代风格主要体现为简约而不简单,舒适而温馨,尽量让空间变得更加精炼。该案例以冷色调为基调,为业主创造出愉悦、舒适的居住氛围。

客厅
第1张
第2张
第3张
第4张
餐厅
第1张
卧室
第1张
卫生间
第1张
厨房
第1张
儿童房
第1张
门厅
第1张
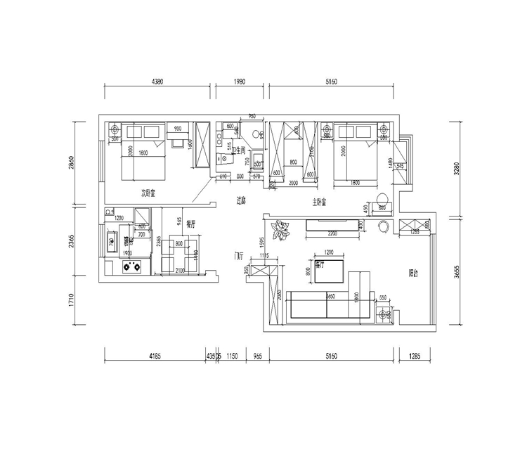
户型图
第1张
  • 案例详情

群升新天地-110平-现代风格-客厅.jpg 群升新天地-110平-现代风格-客厅3.jpg 群升新天地-110平-现代风格-客厅2.jpg 群升新天地-110平-现代风格-首图.jpg

群升新天地110平2居室现代风格林凤装饰的客厅是宽敞的空间,电视背景墙采用工艺石膏线做出对称的造型,正面墙运用了素色壁布来装饰,简洁时尚的同时更给客厅地面和整体家居增加了对比感。

群升新天地-110平-现代风格-餐厅.jpg

群升新天地110平2居室现代风格林凤装饰的厨房由于空间在设计上扩大空间,餐桌区就不在是原始空间那么宽敞,所以运用四人位足够满足了后期家人的需求,墙面挂画和隔板不仅美观而且在两人就餐时别有另一番乐趣。

群升新天地-110平-现代风格-主卧.jpg

群升新天地110平2居室现代风格林凤装饰的卧室因为本身110平米房子两个卧室,所以主卧室空间超大,所以最大好处就是主人有一个私人定制的整体衣帽间,满足居住需求的同时就再也不用担心以后家里的东西没地方储放了。

群升新天地-110平-现代风格-卫生间.jpg

群升新天地110平2居室现代风格林凤装饰的卫生间浅灰色的墙地一体砖,时尚的吊柜手盆和镜箱卫浴,白色的顶棚这样的设计鲜明的对比感很强烈,把整个空间把原有狭小的空间增添了艺术感。

群升新天地-110平-现代风格-厨房.jpg

群升新天地110平2居室现代风格林凤装饰的闭式的厨房是两位主人的首要要求,因为早中晚都会在家做饭,厨房空间在设计上扩大空间,暖白色一体的上下橱柜,显得格外整洁明亮,和深色的墙砖形成了鲜明的对比,倒U型的设计,也让主人使用起来更加得心应手。

群升新天地-110平-现代风格-儿童房.jpg

群升新天地110平2居室现代风格林凤装饰的儿童房

群升新天地-110平-现代风格-门厅.jpg

群升新天地110平2居室现代风格林凤装饰的进门选择实用性的鞋柜设计,下空放拖鞋,半高的鞋柜设计满足的两人回家的功能需求,这样也不会看着空间压抑。

群升新天地-110平-现代风格-平面图.jpg

案例设计师

林凤装饰设计师

设计师:林凤装饰设计师

从业时间:10年

设计理念:用灵魂感知梦一般的空间

预约设计师

算算你家装修多少钱

报名即享丰厚赠品,享半价装修

免费报价
咨询热线:400-656-9909
20190221103704574636.jpg

精品设计案例

20180612134930523248.jpg 服务号二维码.jpg