立即预约 立即预约
免费定制整装家居

免费定制整装家居

一站置家 全程无忧 一省到底
hide.png

当前位置: 首页 > 装修案例效果图 > 中海康城

中海康城 85平 现代简约风格效果图

收藏
案例风格 现代简约 案例户型 二居 案例面积 85平米
楼盘名称 中海康城 设计师 林凤装饰设计师 案例类型 改善性住宅

设计理念:中海康城85平2居室为期房,房主是一对年轻夫妻,特别注重设计方案,为了装修方案提前半年开始找装修公司出设计图纸,所以对装修风格以及很多细节都做了定位,女房主更喜欢木材和石材以及不锈钢 所以将装修风格定为现代都市!
以现代都市的设计表现形式 来满足业主对于简约却不简单的居室环境的要求,由于快节奏、高频率生活节奏,导致了人们需要在一天的工作之余,想要得到一个简约型的空间来得到一个心灵的放松,希望能够在家中摆脱世俗的繁琐、复杂并且追求简单、自然的的生活状态。

客厅
第1张
第2张
第3张
餐厅
第1张
卧室
第1张
卫生间
第1张
厨房
第1张
休闲区
第1张
过廊
第1张
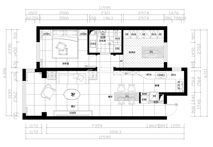
户型图
第1张
  • 案例详情

中海康城-85平米-现代风格-客厅.jpg 中海康城-85平米-现代风格-首图.jpg 中海康城-85平米-现代风格-电视墙.jpg

中海康城85平2居室现代风格林凤装饰的房主平时喜欢看电影 所以在客厅空间做了高清投影,看出房主对生活的热爱和享受。 女房主有养花养植物的需求,所以在扩出去的阳台做了花架来满足需要!

中海康城-85平米-现代风格-餐厅.jpg

中海康城85平2居室现代风格林凤装饰的餐厅考虑两人吃饭很少用餐桌 就把餐桌改为吧台了,这样既不用担心吃饭时候没有餐桌 也能满足男房主来朋友到家里做客有地方喝酒了~~因为男房主平时爱好收藏杯子,所以吧台后面做了整面的柜子和橱柜连为一体,虑厨房开间,所以讲橱柜和收藏杯子的柜子先衔接处做了斜面的柜体,这样对厨房也起到延伸空间的作用!

中海康城-85平米-现代风格-主卧室.jpg

中海康城85平2居室现代风格林凤装饰的主卧室的空间不大 所以把两侧的柜子分成上下柜,既能当床头柜也可以做储物柜 视觉上看起来不会感觉很闷!

中海康城-85平米-现代风格-卫生间.jpg 中海康城-85平米-现代风格-厨房.jpg

中海康城85平2居室现代风格林凤装饰的厨房把右侧厨房的墙体做了拆除,平行距离烟道留出空间后砌了面墙,厨房改为敞开式厨房

中海康城-85平米-现代风格-休闲室.jpg

中海康城85平2居室现代风格林凤装饰的茶室第一次和这对夫妻接触沟通时候,表示很爱交友喝茶,平时总会有朋友来家里相聚 所以需要一个茶室!但是为了满足储物功能 所以在北卧室一整面墙以及整体地面做柜抬高留出储物空间满足储物需求!

中海康城-85平米-现代风格-过道.jpg

中海康城85平2居室现代风格林凤装饰的过廊

中海康城-85平米-现代风格-平面布置图.jpg

案例设计师

林凤装饰设计师

设计师:林凤装饰设计师

从业时间:10年

设计理念:用设计改变生活方式是为了努力去创造一种更好的生活状态!

预约设计师

算算你家装修多少钱

报名即享丰厚赠品,享半价装修

免费报价
咨询热线:400-656-9909
20190221103704574636.jpg

精品设计案例

20180612134930523248.jpg 服务号二维码.jpg