立即预约 立即预约
免费定制整装家居

免费定制整装家居

一站置家 全程无忧 一省到底
hide.png

当前位置: 首页 > 装修案例效果图 > 金地檀府

金地檀府 96平 现代简约风格效果图

收藏
案例风格 现代简约 案例户型 二居 案例面积 96平米
楼盘名称 金地檀府 设计师 林凤装饰设计师 案例类型 改善性住宅

设计理念:本案是当下流行的黑白灰后现代风格。后现代 黑白灰色调明确,低调轻奢意境。

客厅
第1张
第2张
第3张
餐厅
第1张
第2张
卧室
第1张
第2张
第3张
卫生间
第1张
厨房
第1张
过廊
第1张
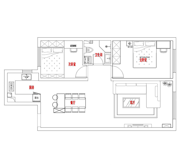
户型图
第1张
  • 案例详情

金地檀府-96平-现代风格-客厅2.jpg 金地檀府-96平-现代风格-客厅.jpg 金地檀府-96平-现代风格-首图.jpg

金地檀府96平2居室现代风格林凤装饰的房屋的举架较低,客厅没有掉棚 所以缺少氛围灯光,在电视背景墙添加了上下虚光灯带 弥补这一缺点。

金地檀府-96平-现代风格-餐厅.jpg 金地檀府-96平-现代风格-餐厅2.jpg

金地檀府96平2居室现代风格林凤装饰的餐区抛去了传统的布置方式。用现下比较流行的方式,餐桌和岛台的结合 更彰显高级感。

金地檀府-96平-现代风格-北卧室.jpg 金地檀府-96平-现代风格-主卧室.jpg 金地檀府-96平-现代风格-主卧室2.jpg

金地檀府96平2居室现代风格林凤装饰的卧室整体以灰色调为主,灰色调的床品、木质地板搭配不对称的画品,提升客户的品味。

金地檀府-96平-现代风格-卫生间.jpg

金地檀府96平2居室现代风格林凤装饰的卫生间墙面水泥砖搭配偏工业风的浴室柜、防雾灯的镜子更加高级。淋浴浴屏的布置 做到了干湿分离,方便后期业主的打扫。

金地檀府-96平-现代风格-厨房.jpg

金地檀府96平2居室现代风格林凤装饰的原本厨房空间很大,依据客户的需求。不需要厨房这么大空间 固抛弃了部分空间 归还客厅 使客厅空间归方 视觉效果更强。

金地檀府-96平-现代风格-过廊.jpg

金地檀府96平2居室现代风格林凤装饰的过廊

金地檀府-96平-现代风格-平面.jpg

案例设计师

林凤装饰设计师

设计师:林凤装饰设计师

从业时间:6年

设计理念:设计源于生活,生活因设计而改变。

预约设计师

算算你家装修多少钱

报名即享丰厚赠品,享半价装修

免费报价
咨询热线:400-656-9909
20190221103704574636.jpg

精品设计案例

20180612134930523248.jpg 服务号二维码.jpg