立即预约 立即预约
免费定制整装家居

免费定制整装家居

一站置家 全程无忧 一省到底
hide.png

当前位置: 首页 > 装修案例效果图 > 美的庄园

美的庄园 320平 美式风格效果图

收藏
案例风格 美式 案例户型 别墅 案例面积 320平米
楼盘名称 美的庄园 设计师 林凤装饰设计师 案例类型 改善性住宅

设计理念:设计源于生活,设计高于生活,设计美化生活

客厅
第1张
第2张
卧室
第1张
第2张
卫生间
第1张
厨房
第1张
书房
第1张
休闲区
第1张
第2张
门厅
第1张
过廊
第1张
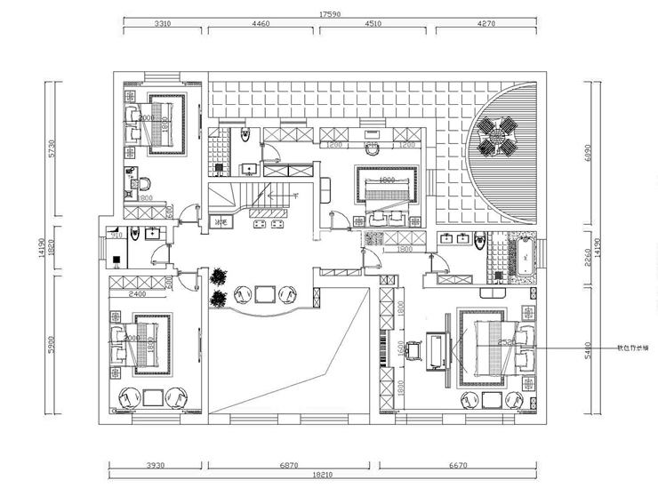
户型图
第1张
第2张
  • 案例详情

美的庄园320平-美式风格-客厅.jpg 美的庄园320平-美式风格-首图.jpg

美的庄园320平平别墅美式风格林凤装饰的客厅空间相对比较完整开敞,独立存在,在布局和家具摆放中主要以聚会式的环形摆放模式,电视并非客厅的中心,主要以交流的家庭氛围为主导。家具选择有质感同时又不繁琐的实木家具,颜色稳重又不老气,搭配暖色调的软装配饰,让客厅氛围更加轻松愉快。

美的庄园320平-美式风格-次卧室.jpg 美的庄园320平-美式风格-主卧室.jpg

【主卧室说明】主卧室整体颜色偏深,搭配有层次感的软包造型床头,让居住空间更显品位。而其他卧室整体颜色却刚好相反的偏浅,只保留实木的风格家具为主色,然后采用美式风格对整个空间进行装饰,运用简洁明快的美式线条,搭配相对朴实无华的家具及配饰,让整个空间体现出纯正的质感,静逸舒适的空间布局。让业主置身其中,感受家的舒适与温馨。

美的庄园320平-美式风格-卫生间.jpg

美的庄园320平平别墅美式风格林凤装饰的卫生间墙面选用了仿古的小瓷砖,让空间视觉上看的卫生间显得很大,深木色的浴室柜搭配白色的坐便,也让卫生间感觉更加干净。

美的庄园320平-美式风格-厨房.jpg

美的庄园320平平别墅美式风格林凤装饰的厨房的空间布局上根据人体工程学设计的三角区,冰箱在一进厨房的左手边,菜盆在一进厨房的左手边,烟机在一进厨房的正对面,这样在我们从冰箱拿菜,在洗菜,切菜,炒菜上形成了流水线,让居住者使用上更加合理和方便。

美的庄园320平-美式风格-书房.jpg

美的庄园320平平别墅美式风格林凤装饰的书房

美的庄园320平-美式风格-休闲区.jpg 美的庄园320平-美式风格-休闲区1.jpg

美的庄园320平平别墅美式风格林凤装饰的休闲区

美的庄园320平-美式风格-门厅.jpg

美的庄园320平平别墅美式风格林凤装饰的玄关

美的庄园320平-美式风格-过廊.jpg

美的庄园320平平别墅美式风格林凤装饰的过廊

美的庄园320平-美式风格-二楼平面.jpg 美的庄园320平-美式风格-一楼平面.jpg

案例设计师

林凤装饰设计师

设计师:林凤装饰设计师

从业时间:10年

设计理念:鲁迅美术学院

预约设计师

算算你家装修多少钱

报名即享丰厚赠品,品质装修

免费报价
咨询热线:400-656-9909
20190221103704574636.jpg

精品设计案例

20180612134930523248.jpg 服务号二维码.jpg