立即预约 立即预约
免费定制整装家居

免费定制整装家居

一站置家 全程无忧 一省到底
hide.png

当前位置: 首页 > 装修案例效果图 > 美的城

美的城 180平 中式风格效果图

收藏
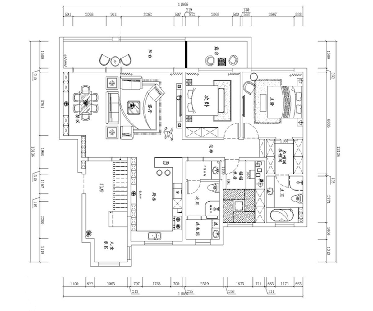
案例风格 中式 案例户型 四居 案例面积 180平米
楼盘名称 美的城 设计师 李丹 案例类型 改善性住宅

设计理念:设计说明:用传统文化的设计,与现代想结合,让整个空间的舒适性更加愉悦。
设计师整体设计理念:传统的设计理念,配上富有中国文化的配饰,使整体中式效果更加明显。

客厅
第1张
第2张
第3张
第4张
第5张
第6张
第7张
餐厅
第1张
卧室
第1张
第2张
卫生间
第1张
厨房
第1张
门厅
第1张
户型图
第1张
  • 案例详情

美的城-180平-中式风格-电视背景墙 (2).jpg 美的城-180平-中式风格-电视背景墙.jpg 美的城-180平-中式风格-客厅 (2).jpg 美的城-180平-中式风格-客厅 (3).jpg 美的城-180平-中式风格-客厅.jpg 美的城-180平-中式风格-首图.jpg 美的城-180平-中式风格-沙发背景.jpg

美的城180平4居室中式风格林凤装饰的客厅以黑胡桃颜色位置,配上比较活跃的金属线条,让空间更加灵活。

美的城-180平-中式风格-餐厅.jpg

美的城180平4居室中式风格林凤装饰的餐厅是经常使用之处,配上软包的座椅,让人就餐时更加舒适,配上纯实木的餐桌,使整个空间更加有档次。

美的城-180平-中式风格-卧室 (2).jpg 美的城-180平-中式风格-卧室.jpg

美的城180平4居室中式风格林凤装饰的卧室是人们经常休息的地方,颜色选用比较欢快明亮些,让人整体更加放松,休息。

美的城-180平-中式风格-卫生间.jpg

美的城180平4居室中式风格林凤装饰的卫生间整体空间并不是很大,用灰色的墙砖,配上白色的浴缸,空间感更强一些。

美的城-180平-中式风格-厨房.jpg

美的城180平4居室中式风格林凤装饰对于厨房的设计和装修,我们大多采用比较现代一点的设计,整体功能性比较全一些,敞开式厨房,空间更加明亮。

美的城-180平-中式风格-玄关.jpg

美的城180平4居室中式风格林凤装饰的玄关

美的城-180平-中式风格-平面布置图.jpg

案例设计师

李丹

设计师:李丹

从业时间:5年

设计理念:用我的专业和你的想法,打造专业的家

预约设计师

算算你家装修多少钱

报名即享丰厚赠品,品质装修

免费报价
咨询热线:400-656-9909
20190221103704574636.jpg

精品设计案例

20180612134930523248.jpg 服务号二维码.jpg