立即预约 立即预约
免费定制整装家居

免费定制整装家居

一站置家 全程无忧 一省到底
hide.png

当前位置: 首页 > 装修案例效果图 > 唯美尚品

唯美尚品 180平 现代简约风格效果图

收藏
案例风格 现代简约 案例户型 三居 案例面积 180平米
楼盘名称 唯美尚品 设计师 林凤装饰设计师 案例类型 改善性住宅

设计理念:设计师设计理念:空间如经商,锱铢必较,设计如行医,由表入里。
本案例设计理念:本案整体设计为现代简约风格。现代简约风格在处理空间方面强调室内空间宽敞、室内通透,最大限度引入自然光。

客厅
第1张
第2张
第3张
餐厅
第1张
卫生间
第1张
厨房
第1张
书房
第1张
衣帽间
第1张
过廊
第1张
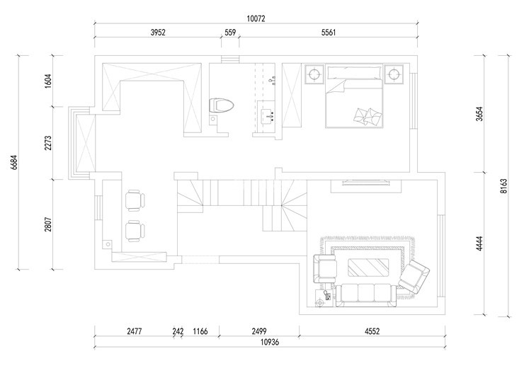
户型图
第1张
  • 案例详情

唯美尚品-180平-现代简约-客厅.jpg 唯美尚品-180平-现代简约-首图.jpg 唯美尚品-180平-现代简约-沙发背景墙.jpg

唯美尚品180平3居室现代风格林凤装饰的客厅采用灰白色为主的装饰,显得温馨自然。整体感觉更加朴素,体现整体的清新淡雅,配上装饰植物,体现自然纯净。

唯美尚品-180平-现代简约-餐厅.jpg

唯美尚品180平3居室现代风格林凤装饰的在餐厅的墙壁上摆放装饰画,已达到增加餐厅的情调,餐桌上的绿色植物,使环境充满生机和活力

唯美尚品-180平-现代简约-卫生间.jpg

唯美尚品180平3居室现代风格林凤装饰的空间简约,线条简约流畅,由于线条简单,装饰元素少,才能显示出美感。

唯美尚品-180平-现代简约-厨房.jpg

唯美尚品180平3居室现代风格林凤装饰的厨房直线型设计给人舒适、干净的感觉,使得下班后的主人身心舒畅、减轻疲劳。

唯美尚品-180平-现代简约-书房.jpg

唯美尚品180平3居室现代风格林凤装饰的书房

唯美尚品-180平-现代简约-衣帽间.jpg

唯美尚品180平3居室现代风格林凤装饰的衣帽间

唯美尚品-180平-现代简约-楼梯.jpg

唯美尚品180平3居室现代风格林凤装饰的楼梯

唯美尚品-180平-现代简约-平面图.jpg

案例设计师

林凤装饰设计师

设计师:林凤装饰设计师

从业时间:9年

设计理念:用平面表达空间 用色彩点亮内容 用立体编织主题

预约设计师

算算你家装修多少钱

报名即享丰厚赠品,享半价装修

免费报价
咨询热线:400-656-9909
20190221103704574636.jpg

精品设计案例

20180612134930523248.jpg 服务号二维码.jpg