立即预约 立即预约
免费定制整装家居

免费定制整装家居

一站置家 全程无忧 一省到底
hide.png

当前位置: 首页 > 装修案例效果图 > 方大御府

方大御府 270平 新中式风格效果图

收藏
案例风格 新中式 案例户型 五居 案例面积 270平米
楼盘名称 方大御府 设计师 齐逢辉 案例类型 改善性住宅

设计理念:设计师设计理念:设计为王,只有新颖的设计才会在大浪淘沙中闪烁出与众不同的光芒。
设计师整体设计说明:说出新中式的第一感觉就是红檀木,让人沉稳的气息。首先让人熟悉的就是线条屏风等等一系列有代表的东西。

客厅
第1张
餐厅
第1张
卧室
第1张
卫生间
第1张
厨房
第1张
书房
第1张
休闲区
第1张
门厅
第1张
过廊
第1张
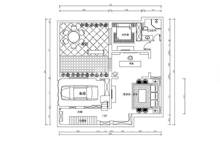
户型图
第1张
  • 案例详情

方大御府-270平-新中式风格-首图.jpg

方大御府270平5居室新中式风格林凤装饰的客厅非常符合新中式的一个空间了,以现代的装饰手法和精美的家具,充分表达出了中式风格的特点,客厅不仅仅是供人休息的地方,它也是整个家中首先映入眼中的娱乐场所,招待客人的地方,金属的灯和石质的背景墙显得屋内高端大气,与屋内中式的特点融为一体。让人充分融入进来。

方大御府-270平-新中式风格-餐厅.jpg

方大御府270平5居室新中式风格林凤装饰的餐厅起到了连接的作用,高端的圆桌。一侧还包含一处休息喝茶的地方。嵌入式酒柜也恰到好处,丝毫不觉得突兀。

方大御府-270平-新中式风格-地下室卧室.jpg

方大御府270平5居室新中式风格林凤装饰的卧室是整个屋内带有隐私的空间。卧室都选择了用屏风等等的有代表性的元素来表示。显得整个屋内十分高端,但并不失去休闲令人放松的感觉。

方大御府-270平-新中式风格-卫生间.jpg

方大御府270平5居室新中式风格林凤装饰的卫生间则打破上诉有人的空间的风格。则采取了小马克砖。镜子增大了原本面积很小的卫生间。休闲趣味十足。

方大御府-270平-新中式风格-厨房.jpg

方大御府270平5居室新中式风格林凤装饰的厨房与餐厅并没有连接在一起,厨房选择的开放性。为了不显得千篇一律,厨房大量使用石材,冷色调把厨房的干净表现的淋漓尽致。红木色的L 型橱柜。

方大御府-270平-新中式风格-二楼书房.jpg

方大御府270平5居室新中式风格林凤装饰的书房

方大御府-270平-新中式风格-二楼茶室.jpg

方大御府270平5居室新中式风格林凤装饰的茶室

方大御府-270平-新中式风格-门厅.jpg

方大御府270平5居室新中式风格林凤装饰的玄关

方大御府-270平-新中式风格-过廊.jpg

方大御府270平5居室新中式风格林凤装饰的过廊

方大御府-270平-新中式风格-平面图.jpg

案例设计师

齐逢辉

设计师:齐逢辉

从业时间:12年

设计理念:设计为王,只有新颖的设计才会在大浪淘沙中闪烁出与众不同的光芒。

预约设计师

算算你家装修多少钱

报名即享丰厚赠品,品质装修

免费报价
咨询热线:400-656-9909
20190221103704574636.jpg

精品设计案例

20180612134930523248.jpg 服务号二维码.jpg