立即预约 立即预约
免费定制整装家居

免费定制整装家居

一站置家 全程无忧 一省到底
hide.png

当前位置: 首页 > 装修案例效果图 > 阳光城

阳光城 135平 新中式风格效果图

收藏
案例风格 新中式 案例户型 三居 案例面积 135平米
楼盘名称 阳光城 设计师 林凤设计师 案例类型 改善性住宅

设计理念:阳光城135平3居室林凤装饰的是新中式中式为主。整体用料大多为实木,因为业主比较年轻,所以木色颜色不深,就显得不那么老气。

客厅
第1张
第2张
第3张
餐厅
第1张
卧室
第1张
卫生间
第1张
厨房
第1张
儿童房
第1张
过廊
第1张
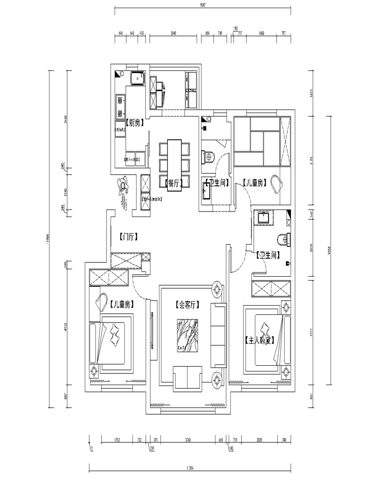
户型图
第1张
阳光城-135平-新中式风格-客厅.jpg 阳光城-135平-新中式风格-客厅电视墙.jpg 阳光城-135平-新中式风格-首图.jpg

阳光城135平3居室新中式风格林凤装饰的客厅整体以木质家具为主,米色的沙发与木色实木扶手相搭配,让人看起来非常的舒适.沙发背景采用山川水墨画很具有品味,吊顶采用圆弧设计体现了中式祥云元素。整个客厅看起来更加具有中国元素的韵味。

阳光城-135平-新中式风格-餐厅.jpg

阳光城135平3居室新中式风格林凤装饰的餐厅也以实木家具为主,靠厨房右侧有实木的酒柜,使整体档次有很大提升,吊顶也采用了祥云元素跟客厅很搭配。餐桌上黄色花瓶起到了跳色的作用更加醒目。

阳光城-135平-新中式风格-主卧室.jpg

阳光城135平3居室新中式风格林凤装饰的主卧室采用灰色地砖搭配水墨元素的硬包。木质边框体现了中式元素,印花地毯体现了温馨感,多头吊灯很具中式韵味。

阳光城-135平-新中式风格-公共卫生间.jpg

阳光城135平3居室新中式风格林凤装饰的卫生间空为了和整体颜色搭配所以选的灰色系的地砖上墙,看着特别大气干净,黑檀木的浴室柜显得高贵典雅,金色金属边框的运用更体现了中式的尊贵。

阳光城-135平-新中式风格-厨房.jpg

阳光城135平3居室新中式风格林凤装饰的厨房

阳光城-135平-新中式风格-儿童房.jpg

阳光城135平3居室新中式风格林凤装饰的儿童房

阳光城-135平-新中式风格-过廊.jpg

阳光城135平3居室新中式风格林凤装饰的过廊

阳光城-135平-新中式风格-平面图.jpg

案例设计师

林凤设计师

设计师:林凤设计师

从业时间:0年

设计理念:

预约设计师

算算你家装修多少钱

报名即享丰厚赠品,享半价装修

免费报价
咨询热线:400-656-9909
20190221103704574636.jpg

精品设计案例

20180612134930523248.jpg 服务号二维码.jpg