立即预约 立即预约
免费定制整装家居

免费定制整装家居

一站置家 全程无忧 一省到底
hide.png

当前位置: 首页 > 装修案例效果图 > 橡树湾

橡树湾 126平 北欧风格效果图

收藏
案例风格 北欧 案例户型 三居 案例面积 126平米
楼盘名称 橡树湾 设计师 林凤装饰设计师 案例类型 改善性住宅

设计理念:橡树湾126平3居室林凤装饰设计的北欧风格常以原木色为元素,浅色系色调的运用,营造出干净明朗,自然清新的视觉感受。

客厅
第1张
第2张
餐厅
第1张
第2张
第3张
卧室
第1张
卫生间
第1张
厨房
第1张
过廊
第1张
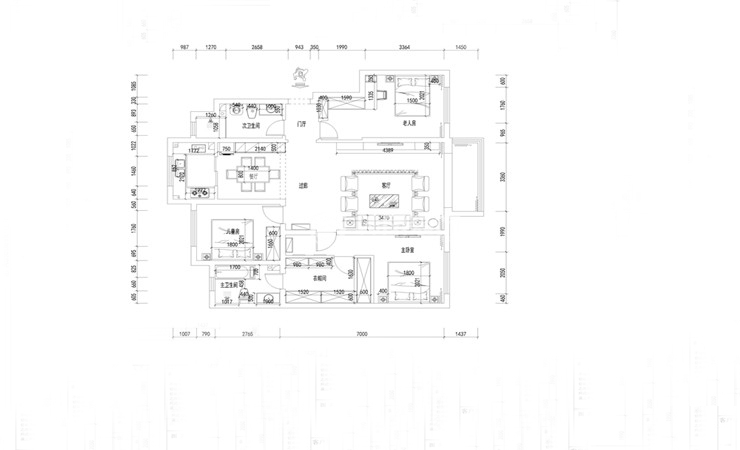
户型图
第1张
  • 案例详情

橡树湾126平米 北欧风格-首图.jpg 橡树湾126平米 北欧风客厅.jpg

橡树湾126平3居室北欧风格林凤装饰的客厅的沙发布置十分简约自然,不同色系的沙发搭配各样式抱枕靠垫,空间色彩不会过于复杂也不会太过简单。

橡树湾126平米 北欧风格-餐厅.jpg 橡树湾126平米 北欧风格-局部.jpg 橡树湾126平米 北欧风格-餐厅1.jpg

橡树湾126平3居室北欧风格林凤装饰的餐厅就在厨房门的外面,厨房的门采用滑动的推门,可以很好的隔绝油烟,也方便开关门,木质长方形餐桌可以增强线条感。

橡树湾126平米 北欧风-卧室.jpg

橡树湾126平3居室北欧风格林凤装饰的卧室

橡树湾126平米 北欧风格-卫生间.jpg

橡树湾126平3居室北欧风格林凤装饰的卫生间是干湿分离的构造,空间比较开阔,洗手盆收纳柜可以对物品进行分类,进而让收纳十分方便。

橡树湾126平米 北欧风格-厨房.jpg

橡树湾126平3居室北欧风格林凤装饰的厨房柜的色调十分有内容,多功能的橱柜在收纳能力比较突出,加上各种收纳支架,厨房就显得十分整洁清爽。

橡树湾126平米 北欧风格-走廊.jpg

橡树湾126平3居室北欧风格林凤装饰的走廊

橡树湾126平米 北欧风格-平面.jpg

案例设计师

林凤装饰设计师

设计师:林凤装饰设计师

从业时间:5年

设计理念:生活是创意的来源,创意源于文化,创意源于自己。

预约设计师

算算你家装修多少钱

报名即享丰厚赠品,享半价装修

免费报价
咨询热线:400-656-9909
20190221103704574636.jpg

精品设计案例

20180612134930523248.jpg 服务号二维码.jpg