立即预约 立即预约
免费定制整装家居

免费定制整装家居

一站置家 全程无忧 一省到底
hide.png

当前位置: 首页 > 装修案例效果图 > 格林观塘

格林观塘 168平 美式风格效果图

收藏
案例风格 美式 案例户型 四居 案例面积 168平米
楼盘名称 格林观塘 设计师 林凤设计师 案例类型 改善性住宅

设计理念:格林观塘168平4居室林凤装饰的是一个四居室三代人同堂,父母退休在家孩子三岁,总体风格以男主人为主,喜欢美式风格大的框架是以巴洛克的奢华大气,也杂糅别的风格元素,比如一些欧式或者现代北欧风格的配饰,虽然融合元素较多但却不显的杂乱。

客厅
第1张
第2张
餐厅
第1张
卧室
第1张
第2张
卫生间
第1张
过廊
第1张
第2张
第3张
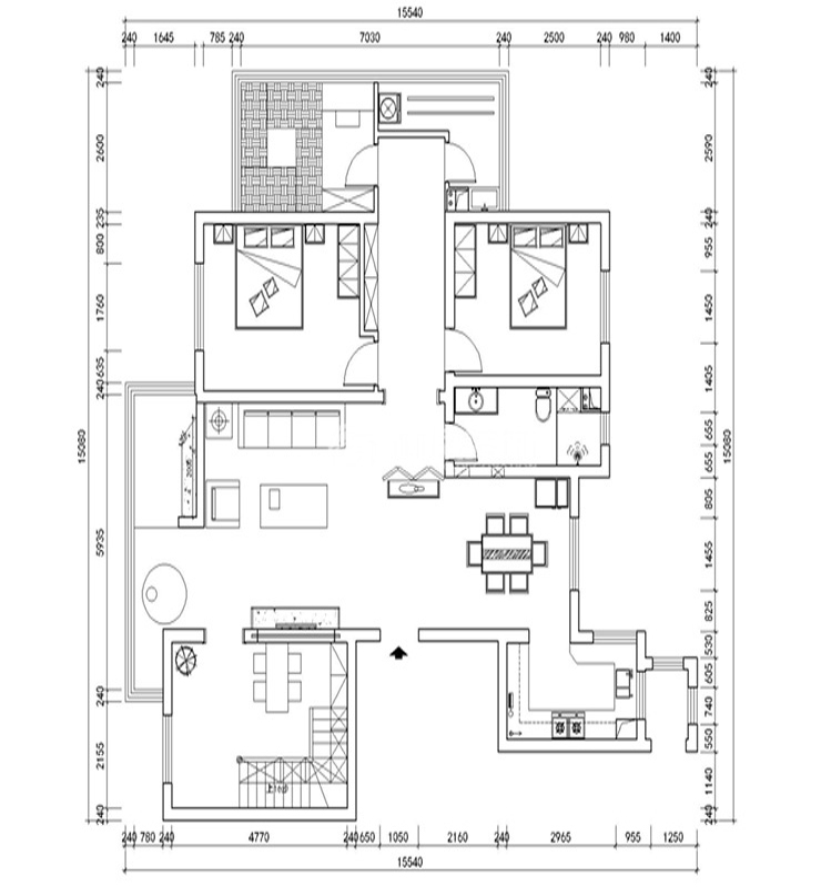
户型图
第1张
  • 案例详情

格林观塘-168平-美式风格-沙发背景墙.jpg 格林观塘-168平-美式风格-首图.jpg

格林观塘168平美式装修风格林凤装饰的客厅采用了很多护墙板造型,地面的拼花与顶面造型棚遥相呼应,使整体效果更加明显。

格林观塘-168平-美式风格-餐厅.jpg

格林观塘168平美式装修风格林凤装饰的餐厅空间与楼梯间紧密的结合到一起,相互陪衬相互衬托,实木的楼梯与吧台餐椅颜色相近,总体划一严密紧凑。

格林观塘-168平-美式风格-次卧.jpg 格林观塘-168平-美式风格-主卧.jpg

格林观塘168平美式装修风格林凤装饰的主卧的空间特别,墙面搭配了一些软装挂画的配饰,后期如果有结婚或者艺术照片可以挂在床头。

格林观塘-168平-美式风格-卫生间.jpg

格林观塘168平美式装修风格林凤装饰的卫生间

格林观塘-168平-美式风格-过道.jpg 格林观塘-168平-美式风格-楼梯间.jpg 格林观塘-168平-美式风格-走廊.jpg 格林观塘-168平-美式风格-平面图.jpg

案例设计师

林凤设计师

设计师:林凤设计师

从业时间:5年

设计理念:热爱设计热爱生活让作品更加有温度

预约设计师

算算你家装修多少钱

报名即享丰厚赠品,享半价装修

免费报价
咨询热线:400-656-9909
20190221103704574636.jpg

精品设计案例

20180612134930523248.jpg 服务号二维码.jpg