立即预约 立即预约
免费定制整装家居

免费定制整装家居

一站置家 全程无忧 一省到底
hide.png

当前位置: 首页 > 装修案例效果图 > 佳和新城

佳和新城 97平 现代简约风格效果图

收藏
案例风格 现代简约 案例户型 三居 案例面积 97平米
楼盘名称 佳和新城 设计师 郑婷婷 案例类型 改善性住宅

设计理念:房间整体颜色以黑灰色为主,加入一些镜面元素。电视背景墙结合玄关鞋柜作为一个整体,增大储物空间。

客厅
第1张
第2张
卧室
第1张
第2张
第3张
第4张
第5张
第6张
卫生间
第1张
厨房
第1张
第2张
门厅
第1张
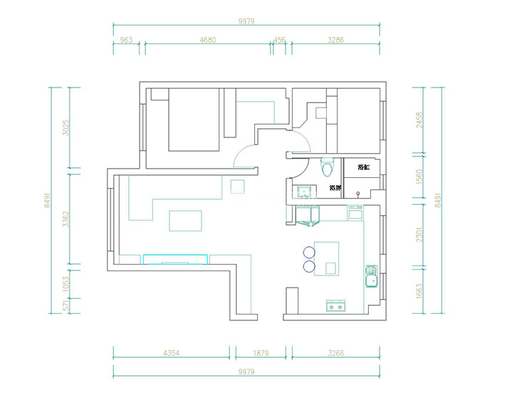
户型图
第1张
  • 案例详情

佳和新城-97平-现代风格-首图.jpg 佳和新城-97平-现代风格-客厅.jpg

佳和新城97平2居室现代风格林凤装饰的客厅选用皮质沙发提升空间整体质量和效果,客厅背景采用镜面元素,使空间整体显得更加通透。搭配相对应的挂画与墙面相呼应。

佳和新城-97平-现代风格-榻榻米.jpg 佳和新城-97平-现代风格-主卧.jpg 佳和新城-97平-现代风格-榻榻米 (2).jpg 佳和新城-97平-现代风格-主卧1 (2).jpg 佳和新城-97平-现代风格-主卧2.jpg 佳和新城-97平-现代风格-主卧1.jpg

【主卧说明】主卧室选用深色壁纸提升房间整体质感和整体效果,衣帽间与卧室之间采用通透的柜子作为隔断,既保证了美观性,又增加了储物空间。【榻榻米说明】榻榻米采用一步台阶的形式,方便孩子上榻榻米,更加符合人体工程学。现代榻榻米铺放床垫,更适合年轻人居住。

佳和新城-97平-现代风格-卫生间.jpg

佳和新城97平2居室现代风格林凤装饰的卫生间

佳和新城-97平-现代风格-厨房1.jpg 佳和新城-97平-现代风格-厨房.jpg

佳和新城97平2居室现代风格林凤装饰的开放式厨房选用长方形岛台,增大了空间利用率,并且岛台可以作为餐桌来使用,岛台上留有小型洗菜盆,可以作为简单的操作台。

佳和新城-97平-现代风格-玄关.jpg

佳和新城97平2居室现代风格林凤装饰的玄关

佳和新城标准施工图-Model.jpg

案例设计师

郑婷婷

设计师:郑婷婷

从业时间:9年

设计理念:用心与住宅对话,交织出住宅中的灵魂所属

预约设计师

算算你家装修多少钱

报名即享丰厚赠品,品质装修

免费报价
咨询热线:400-656-9909
20190221103704574636.jpg

精品设计案例

20180612134930523248.jpg 服务号二维码.jpg