立即预约 立即预约
免费定制整装家居

免费定制整装家居

一站置家 全程无忧 一省到底
hide.png

当前位置: 首页 > 装修案例效果图 > 依云美域

依云美域 133平 港式风格效果图

收藏
案例风格 港式 案例户型 三居 案例面积 133平米
楼盘名称 依云美域 设计师 林凤设计师 案例类型 改善性住宅

设计理念:依云美域133平三居室港式风格林凤装饰的男女业主为医护人员,追求自由而有章法的生活空间。

客厅
第1张
第2张
第3张
餐厅
第1张
卧室
第1张
卫生间
第1张
厨房
第1张
阳台
第1张
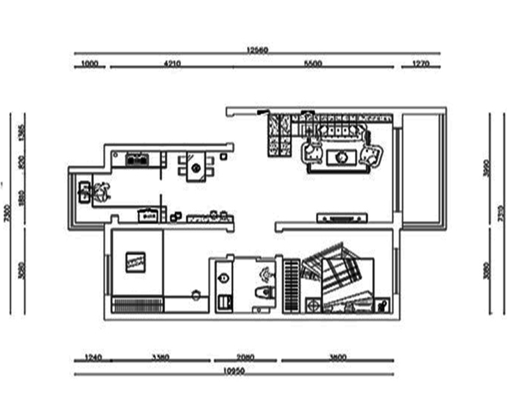
户型图
第1张
  • 案例详情

依云美域-133平-轻港式 -客厅.jpg 依云美域-133平-轻港式 -客厅1.jpg 依云美域-133平-轻港式 -首图.jpg

依云美域133平三居室港式风格林凤装饰的电视背景墙用黑色金属条包边以灰色壁布稳重而不会有沉闷感,简洁的理石背景墙结合玻璃楼梯,宁静致远。光源大气 现代感十足。

依云美域-133平-轻港式 -餐厅.jpg

依云美域133平三居室港式风格林凤装饰的餐厅地面地板 通铺到厨房 餐厅 ,餐桌与吧台之间做自然划分,同时又延伸了空间动线,起到拉伸视觉效果的作用,让区域之间的连贯性更强。

依云美域-133平-轻港式 -卧室.jpg

依云美域133平三居室港式风格林凤装饰的卧室灰的色调,灰色的立体壁画与床,地毯相互呼应,给人以舒适柔和的感两者结合便可轻易看出空间主人的不俗品味,简洁的装饰了整空间

依云美域-133平-轻港式 -卫生间.jpg

依云美域133平三居室港式风格林凤装饰的卫生间整体盆设计,整体以灰色墙砖来以衬托结局的洁白这枚 ,为主简洁大气十足。

依云美域-133平-轻港式 -厨房.jpg

依云美域133平三居室港式风格林凤装饰的厨房

依云美域-133平-轻港式 -阳台.jpg

依云美域133平三居室港式风格林凤装饰的阳台

依云美域-133平-轻港式 -平面布局.jpg

案例设计师

林凤设计师

设计师:林凤设计师

从业时间:6年

设计理念:专注于一件事,并把他做到极致,

预约设计师

算算你家装修多少钱

报名即享丰厚赠品,品质装修

免费报价
咨询热线:400-656-9909
20190221103704574636.jpg

精品设计案例

20180612134930523248.jpg 服务号二维码.jpg