立即预约 立即预约
免费定制整装家居

免费定制整装家居

一站置家 全程无忧 一省到底
hide.png

当前位置: 首页 > 装修案例效果图 > 新湖青蓝国际

新湖青蓝国际 104平 北欧风格效果图

收藏
案例风格 北欧 案例户型 三居 案例面积 104平米
楼盘名称 新湖青蓝国际 设计师 林凤设计师 案例类型 改善性住宅

设计理念:新湖青蓝国际104平林凤装饰设计的户型是一个南北通透的三居室,户型位于沈阳于洪区,客户是一个从事设计软件的男青年,平时工作经常加班,工作时间非常的不稳定。对房子的装修设计没有太多设计上的追求。比较注重人性化的设计,以功能性为主的生活理念。本案例的风格是现代北欧风格。

客厅
第1张
第2张
第3张
第4张
餐厅
第1张
卧室
第1张
第2张
厨房
第1张
儿童房
第1张
户型图
第1张
  • 案例详情

新湖青蓝国际-104平-现代北欧风格-客厅3.jpg 新湖青蓝国际-104平-现代北欧风格-客厅2.jpg 新湖青蓝国际-104平-现代北欧风格-客厅1.jpg 新湖青蓝国际-104平-现代北欧风格-首图.jpg

新湖青蓝国际104平3居室林凤装饰的风格是现代北欧风格,客厅外的阳台打通到室内,这样既实用有一个封闭式的晾晒区而且也大大增加了客厅的使用空间,整个客厅的造型比较简单,墙面没有丰富的造型而是刷了一面雾霾蓝色的乳胶漆,非常的干净简洁。

新湖青蓝国际-104平-现代北欧风格-餐厅.jpg

新湖青蓝国际104平3居室现代北欧风格林凤装饰的餐厅空间主要是考虑光源,色彩搭配比较重要,餐厅的背景墙很小不适合做造型,比较适合放一些可以储物摆放装饰品的酒格,餐厅的光源比较适合放一些带设计感的吊灯这样空间看起来非常的丰富,餐桌的选择是比较有色彩冲击的,暖色调看起来更有食欲。

新湖青蓝国际-104平-现代北欧风格-次卧1.jpg 新湖青蓝国际-104平-现代北欧风格-主卧.jpg

【主卧室说明】主卧室是以原木风格为主,家具和衣柜都是,整个空间白色混油材质搭配原木风格,床头背景墙看起来单薄可以不需用背景墙只需要放一组北欧风格的装饰画,地板的颜色也是原木风,整个主卧室的看起来不单一很简约。【榻榻米卧室说明】这个户型的次卧空间非常大,基本跟主卧空间差不多,榻榻米的整体搭配风格也是比较原木系列,简约,大方,榻榻米旁边加一组书桌对于平时男主人和女主人办公也是有很大帮助。

新湖青蓝国际-104平-现代北欧风格-厨房.jpg

新湖青蓝国际104平3居室现代北欧风格林凤装饰的厨房整体格局来看是U型的,这个空间比较适合把冰箱放在厨房里,大部分业主们也不喜欢把冰箱放进公共空间。厨房的柜体以原木色为主,这样比较适合这个北欧风格。

新湖青蓝国际-104平-现代北欧风格-次卧2.jpg

新湖青蓝国际104平3居室现代北欧风格林凤装饰的儿童房

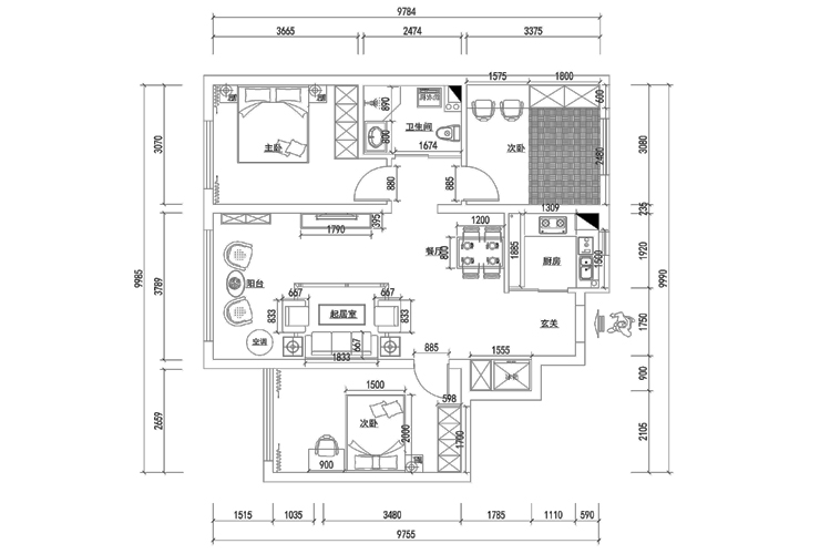
新湖青蓝国际-104平-现代北欧风格-平面图.jpg

案例设计师

林凤设计师

设计师:林凤设计师

从业时间:6年

设计理念:一切随心,用心去感悟空间

预约设计师

算算你家装修多少钱

报名即享丰厚赠品,品质装修

免费报价
咨询热线:400-656-9909
20190221103704574636.jpg

精品设计案例

20180612134930523248.jpg 服务号二维码.jpg