立即预约 立即预约
免费定制整装家居

免费定制整装家居

一站置家 全程无忧 一省到底
hide.png

当前位置: 首页 > 装修案例效果图 > 城建北尚宫廷法式

城建北尚宫廷法式 185平 其他风格效果图

收藏
案例风格 其他 案例户型 三居 案例面积 185平米
楼盘名称 城建北尚 设计师 林凤设计师 案例类型 改善性住宅

设计理念:奢侈是流淌在血液里的浪漫。精致和形式主义般的点滴生活,是悠长的情怀,和对生命意义的另一种优雅的傲慢。

客厅
第1张
第2张
餐厅
第1张
第2张
卧室
第1张
第2张
卫生间
第1张
厨房
第1张
过廊
第1张
第2张
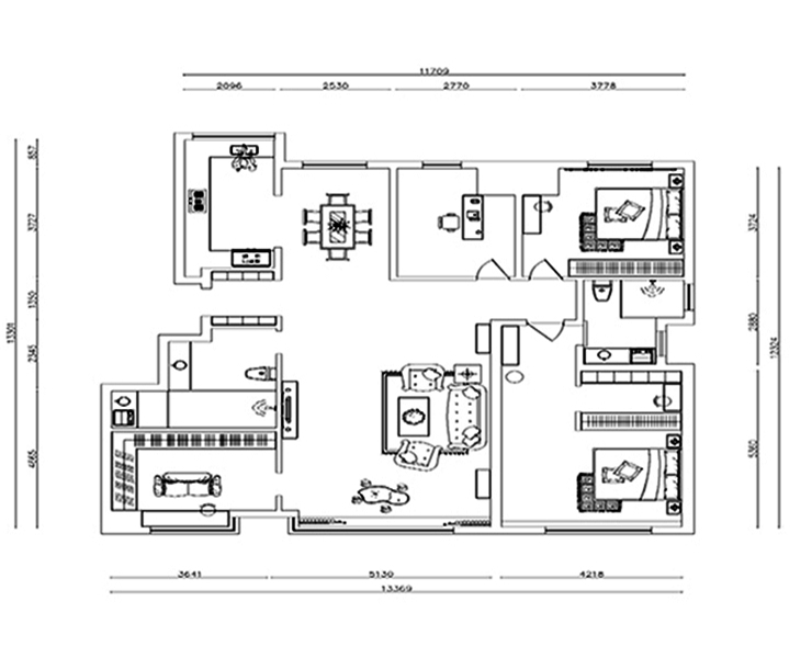
户型图
第1张
  • 案例详情

城建北尚-185平-宫廷法式-客厅.jpg 城建北尚-185平-宫廷法式-首图.jpg

城建北尚185平2居室法式宫廷风格林凤装饰的客厅主题色定义为宫廷蓝,靛黑色为点缀色,打底色选用米灰色,碰撞出一个冷艳,高贵的视觉空间,卫生间门口移位,背景墙采用刚挂大理石配合洛可可线条浓厚的门型。罗马柱包口,宫廷造型感十足。

城建北尚-185平-宫廷法式-餐厅.jpg 城建北尚-185平-宫廷法式-餐厅1.jpg

城建北尚185平2居室法式宫廷风格林凤装饰的餐厅地面的双色波导线错落,顶棚金箔交相辉映,餐厅背景马赛克图腾来源于法式壁挂喷绘。家具颜色宫廷蓝冷艳。傲慢不容侵犯。

城建北尚-185平-宫廷法式-榻榻米.jpg 城建北尚-185平-宫廷法式-主卧室.jpg

【主卧室说明】衣帽间。主卫生间,谷仓门,是主人便捷生活方式的体现,优雅的天空蓝,碰撞丝绒紫尽显高贵与雍容。

城建北尚-185平-宫廷法式-卫生间.jpg

城建北尚185平2居室法式宫廷风格林凤装饰的卫生间从原来的4平扩大到11平,双手盆设计配合干湿分离双套淋浴系统,大气十足。

城建北尚-185平-宫廷法式-厨房.jpg

城建北尚185平2居室法式宫廷风格林凤装饰的开放式厨房,中西厨结合动线流畅。

城建北尚-185平-宫廷法式-过廊.jpg 城建北尚-185平-宫廷法式-过廊1.jpg 城建北尚-185平-平面布局.jpg

案例设计师

林凤设计师

设计师:林凤设计师

从业时间:6年

设计理念:专注于一件事,并把他做到极致,

预约设计师

算算你家装修多少钱

报名即享丰厚赠品,品质装修

免费报价
咨询热线:400-656-9909
20190221103704574636.jpg

精品设计案例

20180612134930523248.jpg 服务号二维码.jpg