立即预约 立即预约
免费定制整装家居

免费定制整装家居

一站置家 全程无忧 一省到底
hide.png

当前位置: 首页 > 装修案例效果图 > 华润置地

华润置地 240平 港式风格效果图

收藏
案例风格 港式 案例户型 四居 案例面积 240平米
楼盘名称 华润置地 设计师 孟凡玉 案例类型 改善性住宅

设计理念:华润置地240平4居室林凤装饰的港式风格以现代线条为主,色彩冷静、线条简单。风格以金属色和线条感营造金碧辉煌的豪华感,简洁而不失时尚。

客厅
第1张
第2张
餐厅
第1张
卧室
第1张
卫生间
第1张
厨房
第1张
书房
第1张
休闲区
第1张
过廊
第1张
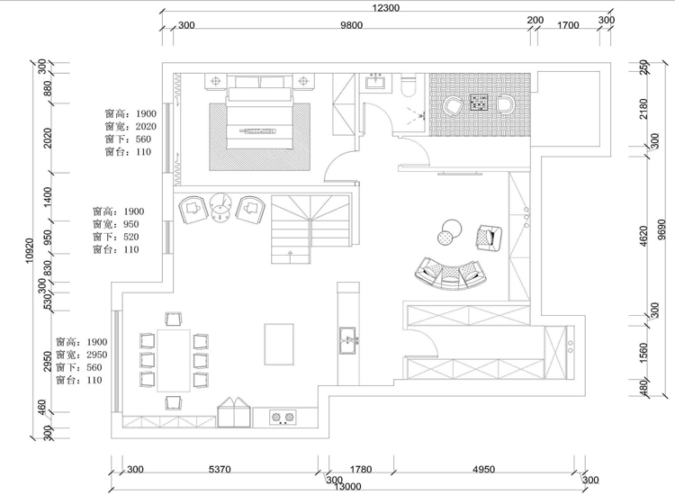
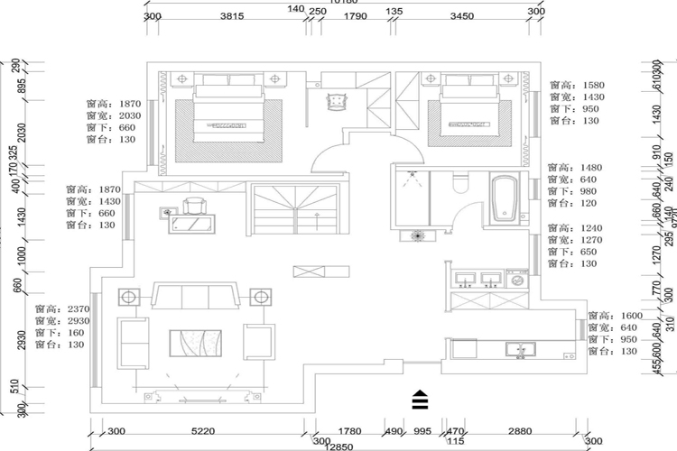
户型图
第1张
第2张
  • 案例详情

华润置地-240平-港式风格-客厅.jpg 华润置地-240平-港式风格-首图.jpg

华润置地240平4居室港式风格林凤装饰的客厅的设计以现代为主,大多色彩冷静、线条简单这种过于冷静的家居格调显得不够柔和,配饰选用一些合适的家居饰品来协调、中和。

华润置地-240平-港式风格-餐厅.jpg

华润置地240平4居室港式风格林凤装饰的餐厅细节需要仔细搭配、餐桌上的餐具精心挑选。在本案设计里面,家居中的用料、家具等大多精良,因而,在餐具上面也应该选择那些精致的瓷器、理石与之匹配。,明亮的色调,展现出餐厅原有的高贵感觉。

华润置地-240平-港式风格-卧室.jpg

华润置地240平4居室港式风格林凤装饰的卧室以奇特的床型与大城市里猎奇的心态十分吻合,空间组合舒适,而不失审美情趣。

华润置地-240平-港式风格-卫生间.jpg

华润置地240平4居室港式风格林凤装饰的卫生间

华润置地-240平-港式风格-厨房.jpg

华润置地240平4居室港式风格林凤装饰的厨房采用开放式厨房,整体选用亮面理石,跟灯光搭配整体空间,明亮高贵。

华润置地-240平-港式风格-书房.jpg

华润置地240平4居室港式风格林凤装饰的书房的家居设计采用黑、灰、白等内敛色调,因此,灯具采用一些较为丰富的色彩来中和这种灰暗的色调。灯具的另一个功能是提供柔和、偏暖色的灯光,让整体素雅的居室不会有太多的冰冷感觉。

华润置地-240平-港式风格-休闲.jpg

华润置地240平4居室港式风格林凤装饰的休闲区

华润置地-240平-港式风格-过廊.jpg

华润置地240平4居室港式风格林凤装饰的过廊

华润置地-240平-港式风格-平面布置B1.jpg 华润置地-240平-港式风格-平面布置FI.jpg

案例设计师

孟凡玉

设计师:孟凡玉

从业时间:10年

设计理念:好的设计不只是美,它会让人产生美的 感受,它与生活息息相关

预约设计师

算算你家装修多少钱

报名即享丰厚赠品,品质装修

免费报价
咨询热线:400-656-9909
20190221103704574636.jpg

精品设计案例

20180612134930523248.jpg 服务号二维码.jpg