立即预约 立即预约
免费定制整装家居

免费定制整装家居

一站置家 全程无忧 一省到底
hide.png

当前位置: 首页 > 装修案例效果图 > 佰世品德

佰世品德 75平 北欧风格效果图

收藏
案例风格 北欧 案例户型 二居 案例面积 75平米
楼盘名称 佰世品德 设计师 林凤装饰设计师 案例类型 改善性住宅

设计理念:佰世品德75平2居室林凤装饰以北欧风格为主,整体以干净舒适为主,减少装饰,增加空间得留白设计,增加功能性,合理充分得利用空间。

客厅
第1张
第2张
第3张
餐厅
第1张
卧室
第1张
第2张
第3张
卫生间
第1张
厨房
第1张
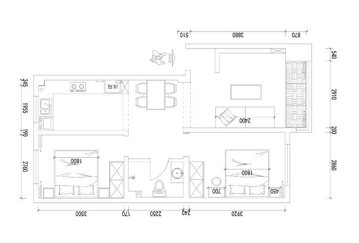
户型图
第1张
  • 案例详情

佰世品德-75平-北欧风格-客厅.jpg 佰世品德-75平-北欧风格-客厅2.jpg 佰世品德-75平-北欧风格-首图.jpg

佰世品德75平2居室北欧风格林凤装饰的客厅没有多余得硬装,明黄系列抱枕,窗帘,装饰画,相互呼应了主题。

佰世品德-75平-北欧风格-餐厅.jpg

佰世品德75平2居室北欧风格林凤装饰的餐厅空间以长椅搭配深木色餐桌,给就餐空间增加了舒适性和实用性。

佰世品德-75平-北欧风格-榻榻米.jpg 佰世品德-75平-北欧风格-主卧2.jpg 佰世品德-75平-北欧风格-主卧.jpg

佰世品德75平2居室北欧风格林凤装饰的客卧做了经典的榻榻米设计,实用美观两不误。小小得空间也包含了,书桌,衣柜,床等等得功能。空间也不显得拥挤。

佰世品德-75平-北欧风格-卫生间.jpg

佰世品德75平2居室北欧风格林凤装饰的卫生间延用了留白设计,灰色砖搭配几何砖,让卫生间变得干净,明亮,整洁。

佰世品德-75平-北欧风格-厨房.jpg

佰世品德75平2居室北欧风格林凤装饰的厨房外的小阳台扩充出去,增大了厨房空间,这对于喜欢制作美食得女主人来说太重要了。厨房选用木色加白色,让厨房更加干净整洁。

佰世品德-75平-北欧风格-平面图.jpg

案例设计师

林凤装饰设计师

设计师:林凤装饰设计师

从业时间:8年

设计理念:好的设计是实用性,经济性,和艺术性的高度统一。

预约设计师

算算你家装修多少钱

报名即享丰厚赠品,品质装修

免费报价
咨询热线:400-656-9909
20190221103704574636.jpg

精品设计案例

20180612134930523248.jpg 服务号二维码.jpg