立即预约 立即预约
免费定制整装家居

免费定制整装家居

一站置家 全程无忧 一省到底
hide.png

当前位置: 首页 > 装修案例效果图 > 美的时代城

美的时代城 175平 欧式风格效果图

收藏
案例风格 欧式 案例户型 三居 案例面积 175平米
楼盘名称 美的时代城 设计师 胡迪 案例类型 改善性住宅

设计理念:美的时代城175平3居室林凤装饰是以欧式风格为主的设计,欧式风格不仅是豪华大气,更多的是惬意和浪漫。传统欧式的家具配合偏现代的软装搭配营造出不一样的欧式感觉。

客厅
第1张
第2张
餐厅
第1张
卧室
第1张
第2张
卫生间
第1张
厨房
第1张
第2张
门厅
第1张
户型图
第1张
第2张
  • 案例详情

美的时代城-175平-欧式奢华-首图.jpg 美的时代城-175平-欧式奢华-客厅.jpg

美的时代城175平3居室欧式奢华林凤装饰的欧式客厅是整个居室的中心也是整个居室最能体现欧式感觉的区域,顶部天花运用多层石膏脚线精巧的做出叠级的效果使空间高度感提高,并与地面拼花形成鲜明的对比,地面拼花运用小方砖加斜拼手法使地面更加丰富,客厅整体感觉又提高一个高度。背景墙的灰镜与雅士白理石套边在加上个性壁纸,是整个客厅的又一亮点。

美的时代城-175平-欧式奢华-厨房.jpg

美的时代城175平3居室欧式奢华林凤装饰的一楼餐厅并非传统意义上的餐厅,而是与西厨融为一体。简单的来说为早餐台与岛台功能大同小异。通过一楼的餐厅把西厨与客厅联系在一起。使整个空间感更大气,符合欧式奢华整体的大气感。

美的时代城-175平-欧式奢华-主卧.jpg 美的时代城-175平-欧式奢华-次卧.jpg

【主卧室说明】由于主卧室空间比较宽阔,我们在窗前设计了一个飘窗柜,并在飘窗柜上铺上软包垫,使飘窗柜有多了一个卡座的功能,闲来无事在卡座上读读书,度过一个惬意的午后。背景墙用软包与金色茶镜的搭配是整个卧室的点睛之笔,茶镜的金色与软包的米色为完美的暖色搭配又不失欧式奢华的调调。在加上欧式经典的角线,奢华的床品完美打造出了温馨又浪漫的居室。

美的时代城-175平-欧式奢华-卫生间.jpg

美的时代城175平3居室欧式奢华林凤装饰的卫生间我们没有过多的造型,风格偏向了现代的感觉。这也是业主的特殊需要。但是我们在瓷砖的铺贴方式上下足了功夫。我们以高级灰作为主颜色并以深灰色作为辅助颜色打造出深浅颜色的交替使怎个空间感更加有设计感。

美的时代城-175平-欧式奢华-厨房2.jpg 美的时代城-175平-欧式奢华-厨房1.jpg

美的时代城175平3居室欧式奢华林凤装饰的厨房由于业主不经常在家爆炒,我们把厨房设计为开放式厨房,这样使空间感更加开阔,也符合西方欧式厨房的感觉。整体橱柜以白色为主使厨房更加整洁,并运用欧式经典的壁纸,营造出冷暖搭配的感觉。

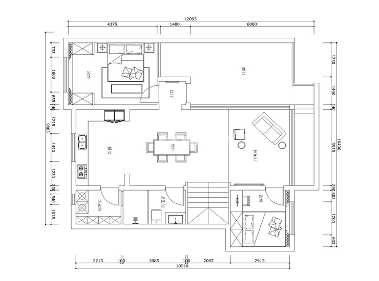
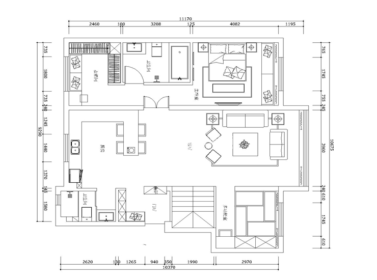
美的时代城-175平-欧式奢华-门厅.jpg 美的时代城-175平-欧式奢华-一层平面图.jpg 美的时代城-175平-欧式奢华-二层平面图.jpg

案例设计师

胡迪

设计师:胡迪

从业时间:14年

设计理念:设计以人为本

预约设计师

算算你家装修多少钱

报名即享丰厚赠品,享半价装修

免费报价
咨询热线:400-656-9909
20190221103704574636.jpg

精品设计案例

20180612134930523248.jpg 服务号二维码.jpg