立即预约 立即预约
免费定制整装家居

免费定制整装家居

一站置家 全程无忧 一省到底
hide.png

当前位置: 首页 > 装修案例效果图 > 美的时代城

美的时代城 101平 北欧风格效果图

收藏
案例风格 北欧 案例户型 三居 案例面积 101平米
楼盘名称 美的时代城 设计师 林凤装饰设计师 案例类型 改善性住宅

设计理念:美的时代城101平3居室林凤装饰以北欧风格设计为主,北欧风格家居设计,简洁、干练,郎爽,木质家具搭配让家中呈现一种自然的清晰舒服感。

客厅
第1张
第2张
第3张
第4张
餐厅
第1张
卧室
第1张
第2张
卫生间
第1张
厨房
第1张
门厅
第1张
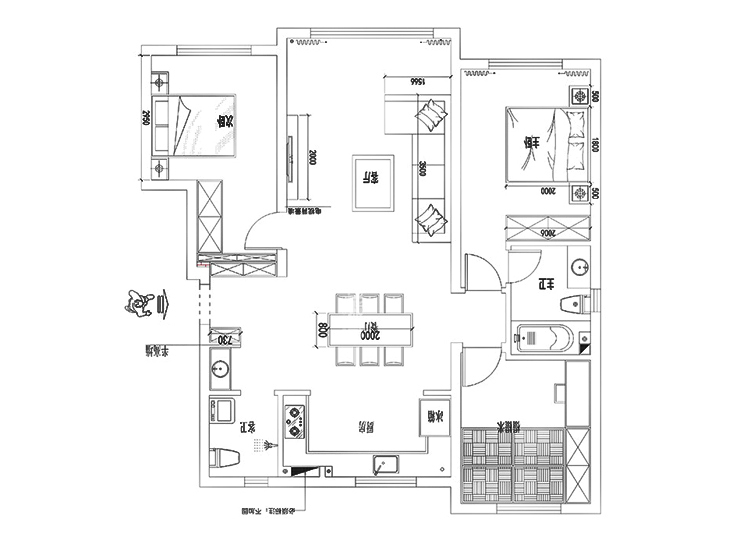
户型图
第1张
  • 案例详情

美的时代城-101平-北欧风格-客厅.jpg 美的时代城-101平-北欧风格-客厅2.jpg 美的时代城-101平-北欧风格-客厅3.jpg 美的时代城-101平-北欧风格-首图.jpg

美的时代城101平3居室北欧风格林凤装饰的客户喜欢温馨,通透的空间,绿色沙发背景墙,再结合黄色为点缀色,烘托出及其温馨的氛围。大厅灰色地砖呈现大气。

美的时代城-101平-北欧风格-餐厅.jpg

美的时代城101平3居室北欧风格林凤装饰的餐厅区域,在餐桌上方有和餐桌相呼应的吊灯,定制酒柜,会营造出非常有感觉的气氛。

美的时代城-101平-北欧风格-次卧.jpg 美的时代城-101平-北欧风格-主卧.jpg

【主卧说明】灰蓝色背景墙与木色家具结合,色彩不再单一,让空间有及其天空的感觉。【次卧说明】 同样也是蓝色背景, 男孩喜欢的颜色 ,使得小孩性格开朗 ,活泼 再加上阳光充沛,格外温馨。

美的时代城-101平-北欧风格-卫生间.jpg

美的时代城101平3居室北欧风格林凤装饰的卫生间主要以白色墙砖为主 ,干净又简洁。

美的时代城-101平-北欧风格-厨房.jpg

美的时代城101平3居室北欧风格林凤装饰的厨房

美的时代城-101平-北欧风格-门厅.jpg

美的时代城101平3居室北欧风格林凤装饰的玄关

美的时代城-101平-北欧风格-平面图.jpg

案例设计师

林凤装饰设计师

设计师:林凤装饰设计师

从业时间:8年

设计理念:因生活而设计,因设计而美好。

预约设计师

算算你家装修多少钱

报名即享丰厚赠品,品质装修

免费报价
咨询热线:400-656-9909
20190221103704574636.jpg

精品设计案例

20180612134930523248.jpg 服务号二维码.jpg