立即预约 立即预约
免费定制整装家居

免费定制整装家居

一站置家 全程无忧 一省到底
hide.png

当前位置: 首页 > 装修案例效果图 > 万科翡翠公园

万科翡翠公园 570平 新中式风格效果图

收藏
案例风格 新中式 案例户型 四居 案例面积 570平米
楼盘名称 万科翡翠公园 设计师 林凤装饰设计师 案例类型 改善性住宅

设计理念:本案是现代中式风格为主的设计案例。主要考虑了现代家居的设计理念与舒适性,所以就把中式繁琐的设计手法给简单化,保留了一些中式的精髓在里面,并且融合了现代的手法,打造了及高雅又独特,既有稳重大气与不缺失文化感觉得中式视觉效果。

客厅
第1张
第2张
第3张
第4张
第5张
餐厅
第1张
第2张
卧室
第1张
第2张
书房
第1张
第2张
休闲区
第1张
过廊
第1张
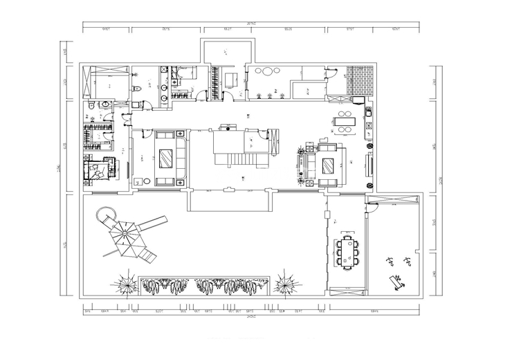
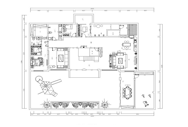
户型图
第1张
第2张
  • 案例详情

万科翡翠公园-570平-新中式-客厅.jpg 万科翡翠公园-570平-新中式-大厅.jpg 万科翡翠公园-570平-新中式-客厅2.jpg 万科翡翠公园-570平-新中式-客厅3.jpg 万科翡翠公园-570平-新中式-首图.jpg

万科翡翠公园570平4居室别墅新中式风格林凤装饰的客厅设计设计利用建筑原有的挑高的结构,经过精心室内设计后,显得气势恢宏,光彩亮丽。金属的的隔断从上而下,使空间有着现代的没。其背景墙利用石材自然地纹理形成一幅中式是山水画一般,充满着巧夺天工的设计效果。沙发背景墙我用硬包这样的表现手法来呈现舒适度,刚刚好的情绪,橘色的饰品在色彩上呼应着前后左右。棚顶的修饰造型,让空间分出不同的层次,沙发茶几韵于期间,使得整个的方案有了家的味道。空间开敞,内外通透自由开放,设计中包含丰富、古老、文化、韵味。木线造型棚是业主非常喜欢的新中式造型

万科翡翠公园-570平-新中式-餐厅.jpg 万科翡翠公园-570平-新中式-餐厅2.jpg

万科翡翠公园570平4居室别墅新中式风格林凤装饰餐厅背景墙我想简单的不复杂,用一种线条艺术来表达。餐桌餐椅的选用是因为精致的生活,要有精致的餐桌椅,要有精致的品味。餐厅独特的设计的背景墙是由壁画来体现,具有强烈的文化感。木质圆形餐桌和餐椅丰富了整个的空间体感。餐厅区独立,位于厨房门口。为业主及家人提供舒适的生活空间感。生活操作更加方便。

万科翡翠公园-570平-新中式-次卧.jpg 万科翡翠公园-570平-新中式-主卧.jpg

万科翡翠公园570平4居室别墅新中式风格林凤装饰整个主卧的家具都采用实木纹,表面镶有金属条,高贵大气;配合颇有现代古风的灯具,更显新潮,再有背景墙上壁画,使得卧室落落大方。

万科翡翠公园-570平-新中式-书房.jpg 万科翡翠公园-570平-新中式-书房2.jpg

万科翡翠公园570平4居室别墅新中式风格林凤装饰的书房一间简洁的书房呈现我们的眼前,规整的家具与装饰配品体现出家的主人生活态度的严谨,以橘黄色金属条包围着书架与橘黄色的书桌则让整个书房的色彩产生了一种跳跃的感觉,充分的中和了书房的严肃的气息。

万科翡翠公园-570平-新中式-茶室.jpg 万科翡翠公园-570平-新中式-走廊.jpg 万科翡翠公园-570平-新中式-平面布局图 (2).jpg 万科翡翠公园-570平-新中式-平面布局图.jpg

案例设计师

林凤装饰设计师

设计师:林凤装饰设计师

从业时间:9年

设计理念:设计回归本位 细节成就品质

预约设计师

算算你家装修多少钱

报名即享丰厚赠品,享半价装修

免费报价
咨询热线:400-656-9909
20190221103704574636.jpg

精品设计案例

20180612134930523248.jpg 服务号二维码.jpg