立即预约 立即预约
免费定制整装家居

免费定制整装家居

一站置家 全程无忧 一省到底
hide.png

当前位置: 首页 > 装修案例效果图 > 浦江苑御品

浦江苑御品 90平 现代简约风格效果图

收藏
案例风格 现代简约 案例户型 二居 案例面积 90平米
楼盘名称 浦江苑御品 设计师 林凤设计师 案例类型 改善性住宅

设计理念:设计本身而言,只是空间的规划。但人一但住进去,就变成生活的艺术,才能让空间变得精彩绝伦。

客厅
第1张
餐厅
第1张
第2张
卧室
第1张
卫生间
第1张
厨房
第1张
阳台
第1张
门厅
第1张
过廊
第1张
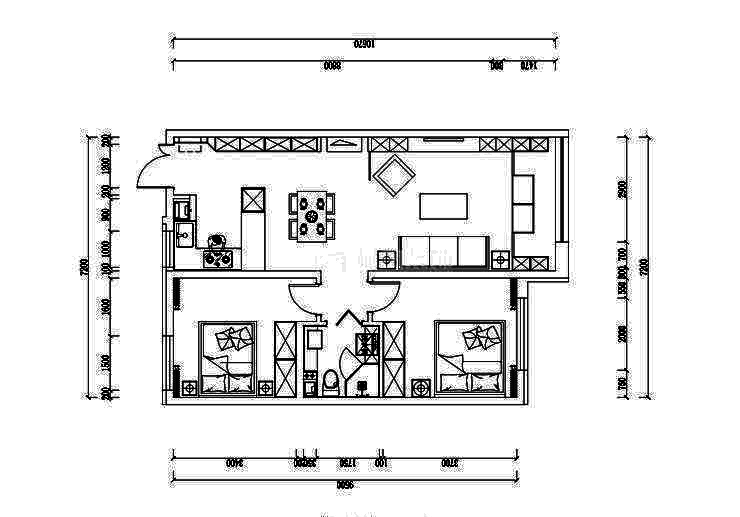
户型图
第1张
  • 案例详情

浦江苑御品-90平米-现代黑白灰-客厅.jpg

浦江苑御品90平2居室现代风格林凤装饰的客厅深灰色地砖高大上的,档次高,整体黑白灰为主,阳台做了地台装饰柜,地台做了沙发垫,充分利用空间,实现了阳台空间与客厅空间既分开又和谐统一

浦江苑御品-90平米-现代黑白灰-餐厅.jpg 55.jpg

浦江苑御品90平2居室现代风格林凤装饰的餐厅与厨房用一个吧台区分开来,它与过廊一侧的酒柜又形成一体,这样过廊与餐厅形成一体,而且岛台式餐厅设计,也为室内动线提供了新的方式,动线流畅

浦江苑御品-90平米-现代黑白灰-卧室.jpg

浦江苑御品90平2居室现代风格林凤装饰的卧室是储藏式设计,定制衣柜完美的解决了成品衣柜储物空间分割不合理的情况,窗帘的选择也是令人耳目一新的,这样解决了空间不对称的问题。

浦江苑御品-90平米-现代黑白灰-卫生间.jpg

浦江苑御品90平2居室现代风格林凤装饰的卫生间生用了灰色的砖,黑白灰颜色搭配,干净大气,光感的设计使得空间变大,而且同样的让我们卫生间变得与众不同。

浦江苑御品-90平米-现代黑白灰-餐厅.jpg

厨房以干净为主,我选择浅灰色瓷砖,它它呼应了地面深灰色地砖,这样白色橱柜凸显了厨房空间的整洁,同样吧台,也是使用橱柜样式,是为了更加丰富我们的储物空间及电器操作空间,而冰箱的设计是因为,煤气管道在那里,也用冰箱分隔空间。

浦江苑御品-90平米-现代黑白灰-阳台.jpg 浦江苑御品-90平米-现代黑白灰-门厅.jpg 浦江苑御品-90平米-现代黑白灰-过廊.jpg 浦江苑御品-90平米-现代黑白灰-平面图.jpg

案例设计师

林凤设计师

设计师:林凤设计师

从业时间:10年

设计理念:

预约设计师

算算你家装修多少钱

报名即享丰厚赠品,品质装修

免费报价
咨询热线:400-656-9909
20190221103704574636.jpg

精品设计案例

20180612134930523248.jpg 服务号二维码.jpg