立即预约 立即预约
免费定制整装家居

免费定制整装家居

一站置家 全程无忧 一省到底
hide.png

当前位置: 首页 > 装修案例效果图 > 和光园

和光园 100平 美式风格效果图

收藏
案例风格 美式 案例户型 二居 案例面积 100平米
楼盘名称 和光园 设计师 林凤装饰全案设计师 案例类型 改善性住宅

设计理念:设计师在充分了解业主的对房屋功能的需求后,从新进行了整体规划,而且房屋本身是十多年的房龄,有很多地方都不适合现在功能的需求,比如储物空间比较少,厨房空间比较小等都需要改造,设计师从空间的格局到整体细节的把控,都做了整体调整,在卧室里增加衣帽间空间,增加储藏功能,把厨房空间变大,增加更多的储藏电器空间,让门厅区增加了储藏空间。

客厅
第1张
第2张
第3张
餐厅
第1张
卧室
第1张
卫生间
第1张
厨房
第1张
书房
第1张
衣帽间
第1张
门厅
第1张
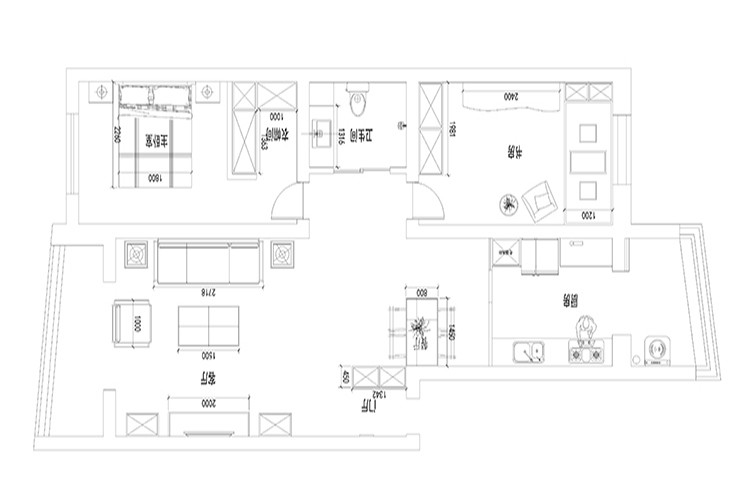
户型图
第1张
  • 案例详情

和光园-100平-现代美式-客厅.jpg 和光园-100平-现代美式-客厅01.jpg 和光园-100平-现代美式-首图.jpg

和光园100平2居室美式风格林凤装饰的客厅整体氛围我们期待营造出现代美式的舒适度,同时又兼具美式的精致感。在整体的色彩搭配中主要采用家具的装饰的搭配,让空间感觉大气,墙面没有做任何的装饰,运用了家具配合装饰画进行点缀,让客厅空间整体更加协调。

和光园-100平-现代美式-餐厅.jpg

和光园100平2居室美式风格林凤装饰的餐厅上面有一根原始梁,所以在餐厅棚面的设计上,采用了整体吊棚,即让餐厅棚面更加整体性,又掩盖了原始梁。餐厅墙面的处理与客厅一致,没有过多的装饰,只是运用了家具和灯饰的搭配。让餐厅与客厅协调一致。

和光园-100平-现代美式-主卧室.jpg

和光园100平2居室美式风格林凤装饰的主卧彩光效果比较好,色调柔和,整体和谐,打造温馨舒适的空间.墙面并没有过多的装饰,通过家具与窗帘的呼应,让空间更加协调。更加适合睡眠。

和光园-100平-现代美式-卫生间.jpg

和光园100平2居室美式风格林凤装饰的卫生间整体采用灰色理石纹理的瓷砖,让较小的空间更加宽敞。同时直线型定制浴柜,增加储藏空间,简单不失使用。

和光园-100平-现代美式-厨房.jpg

和光园100平2居室美式风格林凤装饰的厨房干净整洁,在橱柜的设计上,采用了原木色与白色的搭配,让整体空间有层次感。

和光源-100平-现代美式-书房.jpg

和光园100平2居室美式风格林凤装饰的书房

和光园-100平-现代美式-衣帽间.jpg

和光园100平2居室美式风格林凤装饰的衣帽间

和光园-100平-现代美式-门厅.jpg

和光园100平2居室美式风格林凤装饰的玄关

和光园-100平-现代美式-平面图.jpg

案例设计师

林凤装饰全案设计师

设计师:林凤装饰全案设计师

从业时间:12年

设计理念:应时而变,为未来生活而设计

预约设计师

算算你家装修多少钱

报名即享丰厚赠品,品质装修

免费报价
咨询热线:400-656-9909
20190221103704574636.jpg

精品设计案例

20180612134930523248.jpg 服务号二维码.jpg