立即预约 立即预约
免费定制整装家居

免费定制整装家居

一站置家 全程无忧 一省到底
hide.png

当前位置: 首页 > 装修案例效果图 > 中海康城

中海康城 125平 新中式风格效果图

收藏
案例风格 新中式 案例户型 三居 案例面积 125平米
楼盘名称 中海康城 设计师 菅垚 案例类型 改善性住宅

设计理念:新中式风格,也被称作现代中式风格。新中式风格设计,既是中国传统风格文化与现代时尚元素的融合与碰撞,又是在中国当代文化理解基础上的现代设计。

客厅
第1张
第2张
第3张
第4张
餐厅
第1张
卧室
第1张
第2张
卫生间
第1张
厨房
第1张
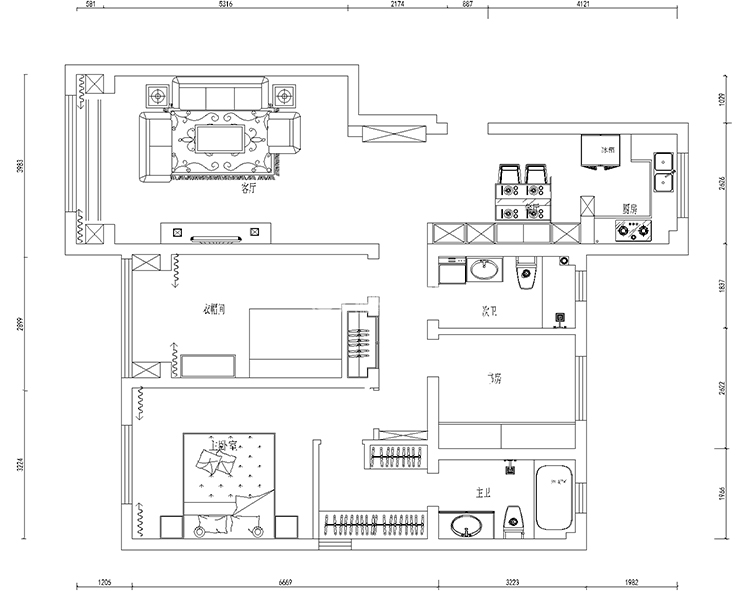
户型图
第1张
  • 案例详情

中海康城-125平-新中式风格-客厅  (1).jpg 中海康城-125平-新中式风格-客厅  (2).jpg 中海康城-125平-新中式风格-客厅  (3).jpg 中海康城-125平-新中式风格-首图 (1).jpg

中海康城125平3居室新中式风格林凤装饰的客厅以深色为主,新中式风格装修有深厚沉稳的底蕴,体现中国浓郁的文化气息。装饰造型主要采用硬朗简洁的直线条,简洁大方,是体现中式传统之美的重点。空间具有层次感。即使得中式家具古典、质朴。

中海康城-125平-新中式风格-餐厅.jpg

中海康城125平3居室新中式风格林凤装饰的餐厅采用实木的餐桌搭配米色布艺坐垫,既时尚又大方,理石的背景墙加以中式装饰,餐桌上的饰品又显几分温馨。

中海康城-125平-新中式风格-次卧.jpg 中海康城-125平-新中式风格-主卧.jpg

主卧室说明:主卧的色彩搭配非常讲究,以深色为主、软装搭配新中式的家具,很好的缓解了中式的厚重感,原卫生间改为衣帽间,增大了存储空间。

中海康城-125平-新中式风格-卫生间.jpg

中海康城125平3居室新中式风格林凤装饰的卫生间采用了大片的镜子和大面积的仿古砖,色彩丰富舒适,干净整洁,重在生活品质的体现,视觉上既舒适又不失韵味。

中海康城-125平-新中式风格-厨房.jpg

中海康城125平3居室新中式风格林凤装饰的厨房采用了深色橱柜,配以浅灰色台面,使厨房看起来干净宽敞,与整个新中式风格间接恰到好处。

中海康城-125平-新中式风格-首图 (2).jpg

案例设计师

菅垚

设计师:菅垚

从业时间:11年

设计理念:没有最好的方案,只有最适合的方案

预约设计师

算算你家装修多少钱

报名即享丰厚赠品,享半价装修

免费报价
咨询热线:400-656-9909
20190221103704574636.jpg

精品设计案例

20180612134930523248.jpg 服务号二维码.jpg