立即预约 立即预约
免费定制整装家居

免费定制整装家居

一站置家 全程无忧 一省到底
hide.png

当前位置: 首页 > 装修案例效果图 > 鑫丰中心里

鑫丰中心里 90平 现代简约风格效果图

收藏
案例风格 现代简约 案例户型 二居 案例面积 90平米
楼盘名称 鑫丰中心里 设计师 林凤装饰全案设计师 案例类型 婚房

设计理念:在色彩上,整体暖黄色的整体搭配,加上电视背景墙的对比色,让色彩搭配很有条理。在材质上地砖、白钢、玻璃让空间元素更多样,更时尚。

客厅
第1张
第2张
第3张
第4张
餐厅
第1张
卧室
第1张
卫生间
第1张
厨房
第1张
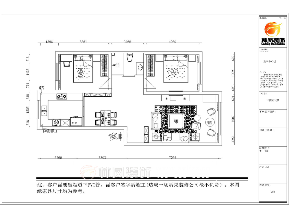
户型图
第1张
  • 案例详情

鑫丰中心里-90平-现代风格-客厅 (1).jpg 鑫丰中心里-90平-现代风格-客厅 (5).jpg 鑫丰中心里-90平-现代风格-客厅 (3).jpg 鑫丰中心里-90平-现代风格-客厅 (2).jpg

刚开始客户不了解吊棚的意义,经过沟通客厅想要一点室内的筒灯去点缀墙面的装饰画,所以客厅处的吊棚是轻钢龙骨石膏板直线边棚,第一让整体棚面更有层次感,灯光隐藏在棚里,让业主在晚上不开主灯的情况下有了酒吧的包围感。第二筒灯打在墙面的画上有灯光效果。电视背景墙以整体护壁纸为主,条形的壁纸让较小的客厅视觉更大,简洁大方,让背景墙更有层次感。

鑫丰中心里-90平-现代风格-餐厅.jpg

业主是年轻人,朋友比较多,所以设计了一个6人餐桌,有吧台灯的照射,让餐桌上食物有了生命力。客户在整体大厅地面是铺地砖还是地板很纠结,我们最终定下了地砖,主要楼层较高采光一般。

鑫丰中心里-90平-现代风格-主卧.jpg

主卧室宽敞明亮,由于主人对生活品质的要求整体房间都是壁纸,造型以黑白灰为主,营造卧室另类时尚的质感。卧室的家具选择依旧是白色为主打。

鑫丰中心里-90平-现代风格-卫生间.jpg

卫生间采用了冷色系的小格子瓷砖,单独做了干湿分离,让卫生间更干净卫生,空间布局合理。

鑫丰中心里-90平-现代风格-厨房.jpg

卫生间采用了冷色系的小格子瓷砖,单独做了干湿分离,让卫生间更干净卫生,空间布局合理。

鑫丰中心里-90平-现代风格-户型图.jpg

案例设计师

林凤装饰全案设计师

设计师:林凤装饰全案设计师

从业时间:10年

设计理念:设计源于生活

预约设计师

算算你家装修多少钱

报名即享丰厚赠品,品质装修

免费报价
咨询热线:400-656-9909
20190221103704574636.jpg

精品设计案例

20180612134930523248.jpg 服务号二维码.jpg