立即预约 立即预约
免费定制整装家居

免费定制整装家居

一站置家 全程无忧 一省到底
hide.png

当前位置: 首页 > 装修案例效果图 > 保利达翠提湾

保利达翠提湾 79平 工业风风格效果图

收藏
案例风格 工业风 案例户型 二居 案例面积 79平米
楼盘名称 保利达翠提湾 设计师 林凤设计师 案例类型 改善性住宅

设计理念:全心全意做设计,踏踏实实做装修。以时尚的设计角度达到一种美的理念。特殊的质感以及深邃的颜色调节,使得整个空间显得格外的舒适和明快。深浅搭配合理运用,恰到好处。
保利达翠提湾79平2居室林凤装饰的工业风格的主要突出特点在于整体的时尚化和大胆化 ,整体的天然质感和原生态的效果才能到现实与理想的结合,颜色的搭配尤为重要,利用色彩的整体协调考虑,颜色的搭配在硬装上也运用的浅色的衬托。

客厅
第1张
第2张
第3张
第4张
餐厅
第1张
卧室
第1张
卫生间
第1张
厨房
第1张
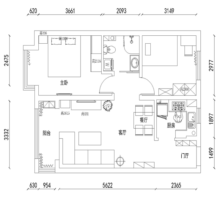
户型图
第1张
  • 案例详情

保利达翠提湾-79平-工业风格-客厅1.jpg 保利达翠提湾-79平-工业风格-客厅2.jpg 保利达翠提湾-79平-工业风格-沙发背景.jpg 保利达翠提湾-79平-工业风格-首图.jpg

保利达翠提湾79平2居室工业风林凤装饰的客厅背景墙是主要以灯饰的配饰为主。因为整个空间颜色偏深。着重在灯具上渲染亮度的色彩,达到一种协调,灰色的地砖沉稳大气,加上米字的沙发背景,使得整个空间又显得活泼。

保利达翠提湾-79平-工业风格-厨房2.jpg

保利达翠提湾79平2居室工业风林凤装饰的餐厅位置用以吧台来取代,达到一种节省空间的作用,紧邻着冰箱,使用起来更加的方便顺畅,餐椅的颜色是整个空间最亮的一点。空间没有占用很大。却在人们的视野里突出明显。整个空间颜色的最大亮点、

保利达翠提湾-79平-工业风格-卧室.jpg

保利达翠提湾79平2居室工业风林凤装饰的卧室呢,就是炭灰色的整体。不要那么深的颜色了。简单的灯具配饰。整个卧室达到一种让人放松的状态。才是对家最好的诠释。

保利达翠提湾-79平-工业风格-卫生间.jpg

保利达翠提湾79平2居室工业风林凤装饰的卫生间深灰的砖大气不失简约,白色的美缝显得整体更为立体。简单的卫浴配饰。使得空间更加大方。大大的镜子能达到扩大空间的效果。达到理想的空间效果。

保利达翠提湾-79平-工业风格-厨房1.jpg

保利达翠提湾79平2居室工业风林凤装饰的厨房干净素雅的墙砖没有在继续整个空间深邃的感觉。更为在调节整个空间的氛围。干净利索的颜色,搭配起深色的橱柜达到一种视觉的冲击。橱柜的储物空间强大,足以满足爱厨房,爱做饭的你。

保利达翠提湾-79平-工业风格-平面图.jpg

案例设计师

林凤设计师

设计师:林凤设计师

从业时间:8年

设计理念:先客户之忧而忧,后客户之乐而乐

预约设计师

算算你家装修多少钱

报名即享丰厚赠品,品质装修

免费报价
咨询热线:400-656-9909
20190221103704574636.jpg

精品设计案例

20180612134930523248.jpg 服务号二维码.jpg