立即预约 立即预约
免费定制整装家居

免费定制整装家居

一站置家 全程无忧 一省到底
hide.png

当前位置: 首页 > 装修案例效果图 > 金地锦城

金地锦城 81平 北欧风格效果图

收藏
案例风格 北欧 案例户型 二居 案例面积 81平米
楼盘名称 金地锦城 设计师 林凤设计师 案例类型 改善性住宅

设计理念:金地锦城81平2居室林凤装饰通过与主人的沟通和了解,知道业主比较喜欢北欧风格。比较喜欢北欧的简洁丶自然

客厅
第1张
第2张
第3张
第4张
餐厅
第1张
第2张
卧室
第1张
第2张
卫生间
第1张
厨房
第1张
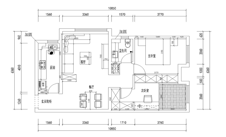
户型图
第1张
  • 案例详情

金地锦城-81平-北欧风格-客厅1.jpg 金地锦城-81平-北欧风格-客厅2.jpg 金地锦城-81平-北欧风格-客厅3.jpg 金地锦城-81平-北欧风格-首图.jpg

金地锦城81平2居室北欧风格林凤装饰的客厅的墙面是北欧风格最常见的白色,简单,清爽,干净,使空间看上去特别的宽敞、通透。背景墙使用简单的石膏线做修饰,铺上简单的壁纸,简洁的同时不会显得特别单调。

金地锦城-81平-北欧风格-餐厅1.jpg 金地锦城-81平-北欧风格-餐厅2.jpg

金地锦城81平2居室北欧风格林凤装饰的餐厅的颜色搭配由客厅延伸出来,让整个空间看起来更加的大。冷色的墙面与暖色的餐桌餐具,让整个餐厅温馨起来,增加主人就餐的食欲。

金地锦城-81平-北欧风格-次卧.jpg 金地锦城-81平-北欧风格-主卧.jpg

金地锦城81平2居室北欧风格林凤装饰的卧室作为睡眠、休息的地方。床与家具选用了白色和,让卧室看起来更加的舒服,让主人在休息的时候更加的舒心。

金地锦城-81平-北欧风格-卫生间.jpg

金地锦城81平2居室北欧风格林凤装饰的卫生间选用白色的地砖和墙砖,体现出北欧风格的卫生间设计,简洁、舒适。

金地锦城-81平-北欧风格-厨房.jpg

金地锦城81平2居室北欧风格林凤装饰的厨房在颜色上以白色和深木色为主,没有华丽的装饰装点,实木的橱柜设计,流利的线条配上大理石的台面,让整体显得简单雅素。

金地锦城81平-北欧风格-户型图.jpg

案例设计师

林凤设计师

设计师:林凤设计师

从业时间:7年

设计理念:专注做最自然的设计。

预约设计师

算算你家装修多少钱

报名即享丰厚赠品,享半价装修

免费报价
咨询热线:400-656-9909
20190221103704574636.jpg

精品设计案例

20180612134930523248.jpg 服务号二维码.jpg