立即预约 立即预约
免费定制整装家居

免费定制整装家居

一站置家 全程无忧 一省到底
hide.png

当前位置: 首页 > 装修案例效果图 > 德商国际花园

德商国际花园 145平 现代简约风格效果图

收藏
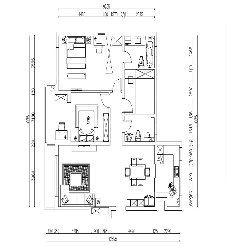
案例风格 现代简约 案例户型 三居 案例面积 145平米
楼盘名称 德商国际花园 设计师 林凤设计师 案例类型 改善性住宅

设计理念:德商国际花园145平2居室林凤装饰设计整体以简洁,干练为主导,搭配彩钢条造型 使空间更有层次感。为业主打造一个自然舒适,干净之美的家。

客厅
第1张
第2张
第3张
餐厅
第1张
第2张
卧室
第1张
第2张
卫生间
第1张
厨房
第1张
第2张
户型图
第1张
  • 案例详情

德商国际花园-145平-现代风格-客厅2图.jpg 德商国际花园-145平-现代风格-首图.jpg 德商国际花园-145平-现代风格-客厅图.jpg

德商国际花园145平2居室现代风格林凤装饰的简洁明快的客厅让人心情愉悦,棚面采用简约边棚配以金属条装饰,既干净整洁又氛围柔和,搭上浅灰色的地砖,淡灰色的布艺沙发,白色理石造型制作的电视背景墙,使得整个空间简洁,细节完美,时尚前卫。

德商国际花园-145平-现代风格-餐厅2图.jpg 德商国际花园-145平-现代风格-餐厅图.jpg

德商国际花园145平2居室现代风格林凤装饰的餐厅以白色和香槟色组成的餐桌与客厅的理石背景墙相互呼应,餐桌背景墙主要以木饰面和金属线条为主,显示客户的年轻及时尚。

德商国际花园-145平-现代风格-次卧室图.jpg 德商国际花园-145平-现代风格-次卧室2图.jpg

德商国际花园145平2居室现代风格林凤装饰的卧室主要以淡粉为主,与灰色窗帘温暖搭配,整个空间给人以温馨舒适的感觉。

德商国际花园-145平-现代风格-卫生间图.jpg

德商国际花园145平2居室现代风格林凤装饰的卫生间采用浅灰色为主,木色洗手盆与灰色理石纹理的台面结合,简约大气。

德商国际花园-145平-现代风格-厨房2图.jpg 德商国际花园-145平-现代风格-厨房图.jpg

德商国际花园145平2居室现代风格林凤装饰的是封闭式厨房,厨柜采用白色门板,灰色的墙砖,让整个厨房空间简洁,干净。

德商国际花园-145平-现代风格-平面图.jpg

案例设计师

林凤设计师

设计师:林凤设计师

从业时间:10年

设计理念:以人为本

预约设计师

算算你家装修多少钱

报名即享丰厚赠品,品质装修

免费报价
咨询热线:400-656-9909
20190221103704574636.jpg

精品设计案例

20180612134930523248.jpg 服务号二维码.jpg