立即预约 立即预约
免费定制整装家居

免费定制整装家居

一站置家 全程无忧 一省到底
hide.png

当前位置: 首页 > 装修案例效果图 > 万锦香樟树

万锦香樟树 80平 现代简约风格效果图

收藏
案例风格 现代简约 案例户型 二居 案例面积 80平米
楼盘名称 万锦香樟树 设计师 孟凡玉 案例类型 改善性住宅

设计理念:万锦香樟树80平2居室林凤装饰设计整体以黑白灰色调为主打,以现代经典的直线条为形态主打设计,用暖姜黄色和冷调蓝色进行软装色彩搭配,与黑白灰进行碰撞。

客厅
第1张
第2张
餐厅
第1张
卧室
第1张
第2张
第3张
第4张
卫生间
第1张
厨房
第1张
第2张
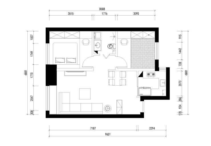
户型图
第1张
  • 案例详情

万锦香樟树-80平-现代风格-客厅2.jpg 万锦香樟树-80平-现代风格-首图.jpg

万锦香樟树80平2居室现代风格林凤装饰的客厅整体色调以黑白灰为主,软装进行暖色与冷色的碰撞,玄关隔断,灯具等形态都以直线线条拼接的形态出现,使整体空间感觉简单大方。

万锦香樟树-80平-现代风格-客厅3.jpg

万锦香樟树80平2居室现代风格林凤装饰的餐厅整体空间明亮,餐桌为玻璃质感黑色,用乳白色餐椅进行调和,使餐厅空间更为柔和

万锦香樟树-80平-现代风格-次卧.jpg 万锦香樟树-80平-现代风格-次卧2.jpg 万锦香樟树-80平-现代风格-主卧1.jpg 万锦香樟树-80平-现代风格-主卧2.jpg

【主卧室说明】主卧室主要以米白色为主,与灰色搭配,整个空间给人以干净舒适的感觉。

万锦香樟树-80平-现代风格-卫生间.jpg

万锦香樟树80平2居室现代风格林凤装饰的卫生间以干净整洁为出发点,没有复杂线条,墙面干净明亮。

万锦香樟树-80平-现代风格-厨房.jpg 万锦香樟树-80平-现代风格-厨房2.jpg

万锦香樟树80平2居室现代风格林凤装饰的厨房厨柜采用白色烤漆门板,白色的墙砖,让整个厨房空间简洁,干净。

万锦香樟树-80平-现代风格-平面图.jpg

案例设计师

孟凡玉

设计师:孟凡玉

从业时间:10年

设计理念:好的设计不只是美,它会让人产生美的 感受,它与生活息息相关

预约设计师

算算你家装修多少钱

报名即享丰厚赠品,品质装修

免费报价
咨询热线:400-656-9909
20190221103704574636.jpg

精品设计案例

20180612134930523248.jpg 服务号二维码.jpg