立即预约 立即预约
免费定制整装家居

免费定制整装家居

一站置家 全程无忧 一省到底
hide.png

当前位置: 首页 > 装修案例效果图 > 绿城全运村

绿城全运村 116平 北欧风格效果图

收藏
案例风格 北欧 案例户型 三居 案例面积 116平米
楼盘名称 绿城全运村 设计师 林凤装饰设计师 案例类型 改善性住宅

设计理念:本案是当下流行的北欧风格。现代风格木质感强烈,色彩搭配丰富。

客厅
第1张
第2张
第3张
第4张
餐厅
第1张
卧室
第1张
卫生间
第1张
第2张
厨房
第1张
门厅
第1张
过廊
第1张
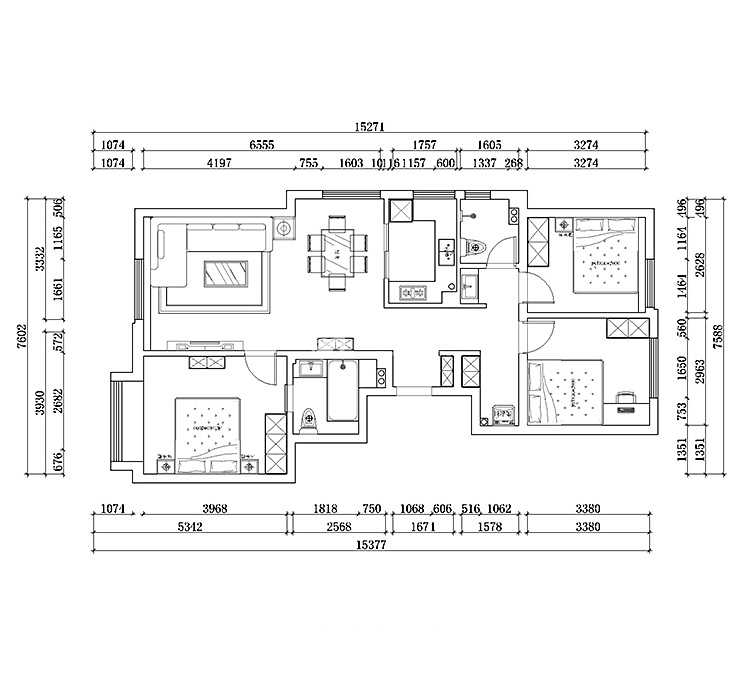
户型图
第1张
  • 案例详情

绿城全运村-116平-北欧风格-客厅1.jpg 绿城全运村-116平-北欧风格-客厅2.jpg 绿城全运村-116平-北欧风格-客厅3.jpg 绿城全运村-116平-北欧风格-首图.jpg

绿城全运村116平2居室北欧风格林凤装饰的客厅整体墙面白色乳胶漆 提亮整个空间的明亮度。浅灰色的沙发搭配灰绿色地毯 彰显整体高级的视觉冲击力。

绿城全运村-116平-北欧风格-餐厅.jpg

绿城全运村116平2居室北欧风格林凤装饰的餐区灰绿布艺卷帘和客厅颜色相呼应,也只整个装修风格的点睛颜色,木色的桌椅的质感 给人放松舒适的感觉

绿城全运村-116平-北欧风格-卧室.jpg

绿城全运村116平2居室北欧风格林凤装饰的卧室床品以灰色系为主,灰色给人放松的直观感受,希望给业主后期入住时提供放松舒适的睡眠环境。

绿城全运村-116平-北欧风格-卫生间.jpg 绿城全运村-116平-北欧风格-洗衣房.jpg

绿城全运村116平2居室北欧风格林凤装饰的卫生间采用干湿分离的设计,手盆外置 墙面灰色墙砖 提高整体卫生间的质感。浴屏的设计 减少打理麻烦。墙面内嵌隔板 方便放淋浴用品。

绿城全运村-116平-北欧风格-厨房.jpg

绿城全运村116平2居室北欧风格林凤装饰为了提高厨房的明亮度,整体的质感 ,墙砖采用爵士白大理石纹理,并搭配白色亚克力亮面的柜门 营造出的氛围 希望业主后期可以很愉快的烹饪。

绿城全运村-116平-北欧风格-门厅.jpg

绿城全运村116平2居室北欧风格林凤装饰的门厅

绿城全运村-116平-北欧风格-过廊.jpg

绿城全运村116平2居室北欧风格林凤装饰的过廊

绿城全运村-116平-北欧风格-平面.jpg

案例设计师

林凤装饰设计师

设计师:林凤装饰设计师

从业时间:6年

设计理念:设计源于生活,生活因设计而改变。

预约设计师

算算你家装修多少钱

报名即享丰厚赠品,享半价装修

免费报价
咨询热线:400-656-9909
20190221103704574636.jpg

精品设计案例

20180612134930523248.jpg 服务号二维码.jpg