立即预约 立即预约
免费定制整装家居

免费定制整装家居

一站置家 全程无忧 一省到底
hide.png

当前位置: 首页 > 装修案例效果图 > 金辉中央云著

金辉中央云著 89平 现代简约风格效果图

收藏
案例风格 现代简约 案例户型 二居 案例面积 89平米
楼盘名称 金辉中央云著 设计师 林凤设计师 案例类型 改善性住宅

设计理念:本案是一个两居室的南北户型,为了一对新婚小夫妇准备婚房设计。这是一个期房,虽然还没有下房但是针对此户型已经做过非常深刻的调研和采尺,小两口比较年轻喜欢简单又时尚的元素,喜欢胡桃不,喜欢北欧,金属质感的材质。

客厅
第1张
第2张
第3张
第4张
餐厅
第1张
卧室
第1张
第2张
卫生间
第1张
厨房
第1张
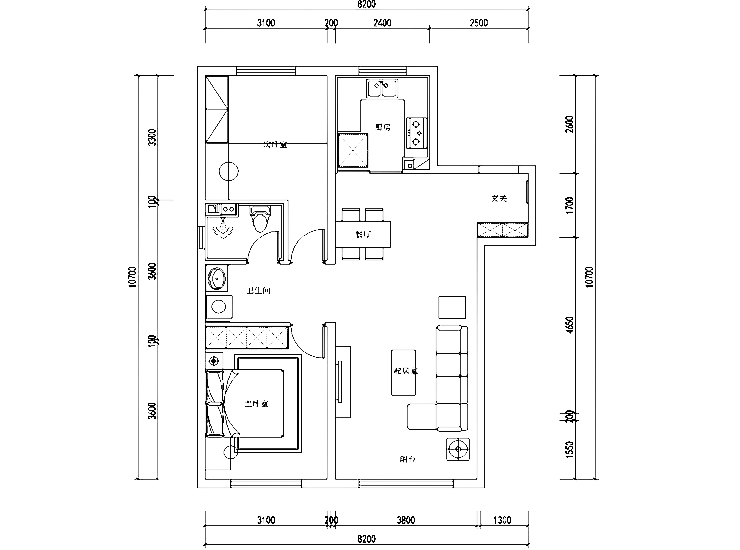
户型图
第1张
  • 案例详情

金辉中央云著-89平-现代简约风格-客厅.jpg 金辉中央云著-89平-现代简约风格-客厅2.jpg 金辉中央云著-89平-现代简约风格-首图.jpg 金辉中央云著-89平-现代简约风格-客厅1.jpg

金辉中央云著89平2居室现代风格林凤装饰的客厅空间需要将外阳台打通连到客厅这样客厅的空间才会加大敞开,在保留足够空间的晾晒区以外,业主完全可以选择设计任何风格的家具尺寸和造型,整个客厅空间顶面以角线为主,墙面大部分是白色墙体,电视背景墙简单涂刷了一层莫兰蒂色系的蓝色调看起来很高级,简约再搭配胡桃木家具非常的简约又档次。

金辉中央云著-89平-现代简约风格-餐厅.jpg

金辉中央云著89平2居室现代风格林凤装饰的餐厅空间是挨着厨房的门口,非常方便,餐桌在一个空间里最好要依靠一面墙,墙上放置几张有亮丽色彩的装饰画这样非常的增加食欲,餐厅的灯选择一款有轻奢风格的吊灯,跟客户的吊灯相呼应,非常的和谐。

金辉中央云著-89平-现代简约风格-次卧.jpg 金辉中央云著-89平-现代简约风格-主卧.jpg

【卧室说明】卧室的空间比较注重舒适度,相对于卧室的光源,尽量分散一些,低调一些,业主不需要主卧室出现主光源,整个卧室空间色彩比较厚重,从心里上来感觉比较有安全感。 【榻榻米卧室说明】次卧室一般客户大部分做榻榻米的多一些,相对一个两室的80多平的房子,储物空间非常的重要,床和榻榻米后者储物空间更大,利用率更高。

金辉中央云著-89平-现代简约风格-卫生间.jpg

金辉中央云著89平2居室现代风格林凤装饰的卫生间

金辉中央云著-89平-现代简约风格-厨房.jpg

金辉中央云著89平2居室现代风格林凤装饰的厨房空间是封闭式的,搭配黑色金属质感的拉门,厨房的地砖跟客户是一致的,厨房的墙砖是比较干净透亮的爵士白,厨房的柜板选择了一款比较现代风格的好打理的面板,这也是迎合的客户的心里想法和需求。

金辉中央云著-89平-现代简约风格-平面图.jpg

案例设计师

林凤设计师

设计师:林凤设计师

从业时间:6年

设计理念:一切随心,用心去感悟空间

预约设计师

算算你家装修多少钱

报名即享丰厚赠品,享半价装修

免费报价
咨询热线:400-656-9909
20190221103704574636.jpg

精品设计案例

20180612134930523248.jpg 服务号二维码.jpg