立即预约 立即预约
免费定制整装家居

免费定制整装家居

一站置家 全程无忧 一省到底
hide.png

当前位置: 首页 > 装修案例效果图 > 洮昌花园

洮昌花园 113平 现代简约风格效果图

收藏
案例风格 现代简约 案例户型 二居 案例面积 113平米
楼盘名称 洮昌花园 设计师 林凤设计师 案例类型 改善性住宅

设计理念:如果将整个居室的室内设计比喻成一部耐人寻味的电影的话,那么家居设计就是这电影中时时出现在关键时刻的电影配乐,或者说插曲。电影插曲总在最打动人心的时刻出现,有着画龙点睛的作用。

客厅
第1张
第2张
第3张
餐厅
第1张
卧室
第1张
卫生间
第1张
厨房
第1张
第2张
门厅
第1张
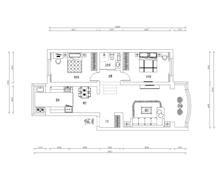
户型图
第1张
  • 案例详情

洮昌花园-113平-现代风格-客厅02.jpg 洮昌花园-113平-现代风格-客厅01.jpg 洮昌花园-113平-现代风格-客厅03.jpg

洮昌花园113平2居室现代风格林凤装饰的客厅以简练精致的线条是空间立面的主题,经典款的家具烘托出低调、时尚的空间氛围。经典留白的背景墙搭配开放柜体,简单、实用而又不失时尚。整体空间采用了浅咖色壁纸,白色系的门、踢脚线,配合棚顶的虚光和筒灯,让整体空间更加明亮。

洮昌花园-113平-现代风格-餐厅.jpg

洮昌花园113平2居室现代风格林凤装饰的餐厅更加注重实用性,设计了边棚,空间更有层次感,灯光氛围的渲染,更加温馨。

洮昌花园-113平-现代风格-卧室.jpg

洮昌花园113平2居室现代风格林凤装饰的卧室和客厅空间,整体风格一致,搭配浅灰色系现代皮床,搭配蓝色系窗帘配饰,灰色木纹地板,调节整体空间氛围。

洮昌花园-113平-现代风格-卫生间.jpg

洮昌花园113平2居室现代风格林凤装饰的卫生间采用浅灰色墙地砖,配白色系卫浴,整体干净利落。

洮昌花园-113平-现代风格-厨房01.jpg 洮昌花园-113平-现代风格-厨房02.jpg

洮昌花园113平2居室现代风格林凤装饰的厨房打通了原北阳台,整体空间增大,浅灰色瓷砖搭配同色系吸塑橱柜,没有过多花哨的设计,重点是空间的干净整洁。

洮昌花园-113平-现代风格-门厅.jpg

洮昌花园113平2居室现代风格林凤装饰的门厅

洮昌花园-113平-现代风格-平面布置图.jpg

案例设计师

林凤设计师

设计师:林凤设计师

从业时间:5年

设计理念:设计不但要有整体性,更要突出实用性和舒适度,注重人体工程学。简单、实用、美观才是王道!

预约设计师

算算你家装修多少钱

报名即享丰厚赠品,品质装修

免费报价
咨询热线:400-656-9909
20190221103704574636.jpg

精品设计案例

20180612134930523248.jpg 服务号二维码.jpg