立即预约 立即预约
免费定制整装家居

免费定制整装家居

一站置家 全程无忧 一省到底
hide.png

当前位置: 首页 > 装修案例效果图 > 城市之光

城市之光 98平 现代简约风格效果图

收藏
案例风格 现代简约 案例户型 三居 案例面积 98平米
楼盘名称 城市之光 设计师 林凤装饰设计师 案例类型 改善性住宅

设计理念:房间整体色调以暖色调为主,局部加入灰色元素使房间的整体品质有所提高,房间整体采用地板补贴,提升房间整体舒适度。

客厅
第1张
第2张
第3张
餐厅
第1张
卧室
第1张
第2张
第3张
卫生间
第1张
厨房
第1张
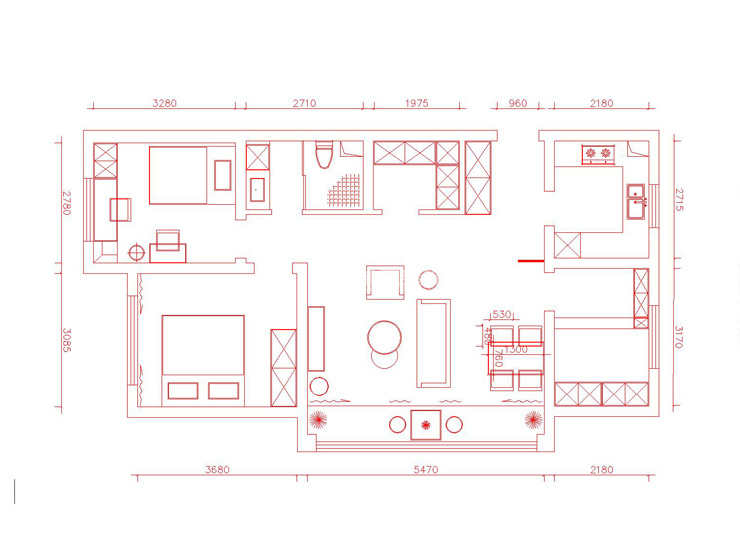
户型图
第1张
  • 案例详情

城市阳光-98平-现代风格-客厅.jpg 城市阳光-98平-现代风格-客厅1.jpg 城市阳光-98平-现代风格-首图.jpg

城市之光98平3居室现代风格林凤装饰的客厅整体选用暖色的家具,搭配灰色的墙体与窗帘使整个客厅更加的高级,沙发选用白色主题沙发与爱马仕橙色单体沙发搭配,使客厅整体搭配更加适合年轻人居住。

城市阳光-98平-现代风格-餐厅.jpg

城市之光98平3居室现代风格林凤装饰的客厅整体开间很宽,整个房间缺少餐厅的空间,所以将客厅进行了分割,将餐厅的位置在沙发后呈现给业主,餐椅选用橙色与单人沙发颜色作为呼应。

城市阳光-98平-现代风格-次卧.jpg 城市阳光-98平-现代风格-榻榻米.jpg 城市阳光-98平-现代风格-主卧.jpg

【主卧室说明】卧室整体采用了浅色为主体的颜色,整个空间一眼看去宽敞明亮。并且以金色台灯橙色与灰色结合的窗帘点缀整个空间,让整个空间不单调。 【榻榻米说明】整个空间采用了定制的方式,让整个空间没有一丝浪费。整面墙的衣柜增加了全屋的储物功能,并采用浅色柜体减弱它的存在。并且增加了一步缓步台,让整个榻榻米没有那么突兀。

城市阳光-98平-现代风格-卫生间.jpg

城市之光98平3居室现代风格林凤装饰的卫生间选用浅色大理石墙砖提升卫生间整体的空间感,采用了干湿分离的方式让整个卫生间空间美观整洁实用。

城市阳光-98平-现代风格-厨房.jpg

城市之光98平3居室现代风格林凤装饰的厨房选用白橱柜与深色墙砖相互搭配,使厨房整体效果更加高级,深色墙砖更加好打理,而且可以提升厨房整体效果。

城市阳光-98平-现代风格-户型图.jpg

案例设计师

林凤装饰设计师

设计师:林凤装饰设计师

从业时间:7年

设计理念:为生活着色

预约设计师

算算你家装修多少钱

报名即享丰厚赠品,品质装修

免费报价
咨询热线:400-656-9909
20190221103704574636.jpg

精品设计案例

20180612134930523248.jpg 服务号二维码.jpg