立即预约 立即预约
免费定制整装家居

免费定制整装家居

一站置家 全程无忧 一省到底
hide.png

当前位置: 首页 > 装修案例效果图 > 海逸铭筑

海逸铭筑 110平 北欧风格效果图

收藏
案例风格 北欧 案例户型 二居 案例面积 110平米
楼盘名称 海逸铭筑 设计师 林凤装饰设计师 案例类型 改善性住宅

设计理念:以功能性需求为主,不添加复杂繁琐的造型,一切简约而不简单。

客厅
第1张
第2张
餐厅
第1张
卧室
第1张
卫生间
第1张
第2张
厨房
第1张
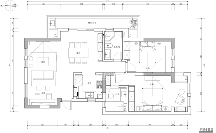
户型图
第1张
  • 案例详情

海逸铭筑-110平-北欧风格-客厅2.jpg 海逸铭筑-110平-北欧风格-客厅.jpg

海逸铭筑110平2居室北欧风格林凤装饰的客厅以中性色为主,家具选用原木色和黑木纹,做颜色上的深浅对比,配上布艺的沙发和窗帘的素色搭配,让北欧的感觉更加明显,温度更加柔和,感觉更加随性。

海逸铭筑-110平-北欧风格-餐厅.jpg

海逸铭筑110平2居室北欧风格林凤装饰的餐厅虽为两口之家,但业主朋友比较多,又是一楼带花园的户型,餐厅的空间选择以多功能化为主,符合业主对于聚餐和多人聚会的空间和功能要求。

海逸铭筑-110平-北欧风格-主卧.jpg

海逸铭筑110平2居室北欧风格林凤装饰的卧室是经常活动的空间,整体采用舒适为主,色彩搭配让人更加放松,愉悦。

海逸铭筑-110平-北欧风格-次卫.jpg 海逸铭筑-110平-北欧风格-主卫.jpg

海逸铭筑110平2居室北欧风格林凤装饰的两个卫生间的功能区域很够用,所以以单一素色色彩呈现,使卫生间看起来更加干净整洁,没有乱差质感。

海逸铭筑-110平-北欧风格-厨房.jpg

海逸铭筑110平2居室北欧风格林凤装饰对于不可变得厨房空间设计,主要以有限空间的最大利用为主,深色瓷砖搭配白色橱柜的色差对吧,是更加空间的层次感。从视觉上扩大有限空间的面积感。

海逸铭筑-110平-北欧风格-平面图.jpg

案例设计师

林凤装饰设计师

设计师:林凤装饰设计师

从业时间:10年

设计理念:鲁迅美术学院

预约设计师

算算你家装修多少钱

报名即享丰厚赠品,品质装修

免费报价
咨询热线:400-656-9909
20190221103704574636.jpg

精品设计案例

20180612134930523248.jpg 服务号二维码.jpg