立即预约 立即预约
免费定制整装家居

免费定制整装家居

一站置家 全程无忧 一省到底
hide.png

当前位置: 首页 > 装修案例效果图 > 中海和平之门

中海和平之门 128平 现代简约风格效果图

收藏
案例风格 现代简约 案例户型 二居 案例面积 128平米
楼盘名称 中海和平之门 设计师 林凤设计师 案例类型 改善性住宅

设计理念:一切随心,用心去感悟空间。本案整体设计为现代轻奢风格,整体采用现代风格主要色调黑白灰,背景墙采用理石拼接,从而使空间感更强,即使色调并不丰富,但整体视觉感等等更适合年轻人。

客厅
第1张
第2张
第3张
餐厅
第1张
卧室
第1张
第2张
第3张
卫生间
第1张
厨房
第1张
阳台
第1张
户型图
第1张
  • 案例详情

中海和平之门-128-现代风格-客厅.jpg 中海和平之门-128-现代风格-客厅2.jpg 中海和平之门-128-现代风格-首图.jpg

中海和平之门128平2居室现代风格林凤装饰的客厅面积相对来说比较大,更规整,没有过多的墙角,所以背景墙采用理石更能出效果,突出整体风格,加之局部墙面造型和定制柜,客厅的现代感体现的淋漓尽致。

中海和平之门-128-现代风格-餐厅.jpg

中海和平之门128平2居室现代风格林凤装饰的餐厅空间也算宽敞,且和客厅相连,整体设计将两个空间归一,没有划分过多的区域,而使空间变得琐碎,即使放六人位餐桌也绰绰有余。

中海和平之门-128-现代风格-次卧室.jpg 中海和平之门-128-现代风格-主卧.jpg 中海和平之门-128-现代风格-主卧室.jpg

【主卧室说明】将主卧室设计成了套房,次卧变成了主卧的开敞衣帽间,考虑到业主后期大部分时间两个人居住,这样设计更充分利用了次卧的空间。

中海和平之门-128-现代风格-卫生间.jpg

中海和平之门128平2居室现代风格林凤装饰的卫生间没有过多的改动,主卫没有放浴屏,客卫由于空间细长,所以采用一字式排列,既满足生活需要又不拥挤。

中海和平之门-128-现代风格-厨房.jpg

中海和平之门128平2居室现代风格林凤装饰的厨房空间中规中矩,将原有平推门改成拉门,既节省空间,又能在就餐时更加方便。

中海和平之门-128-现代风格-阳台.jpg

中海和平之门128平2居室现代风格林凤装饰的阳台

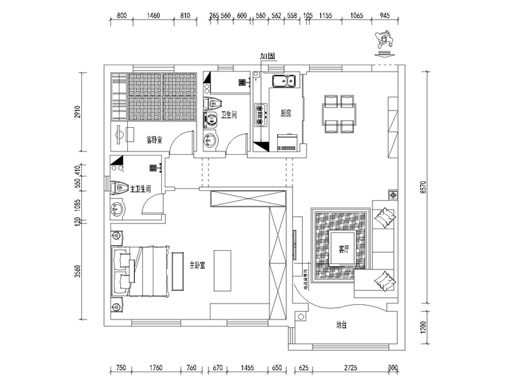
中海和平之门-128-现代风格-户型图.jpg

案例设计师

林凤设计师

设计师:林凤设计师

从业时间:13年

设计理念:无论含蓄还是奢华,能贴合主人味道,传达主人性格的房子才是我所追求的设计

预约设计师

算算你家装修多少钱

报名即享丰厚赠品,品质装修

免费报价
咨询热线:400-656-9909
20190221103704574636.jpg

精品设计案例

20180612134930523248.jpg 服务号二维码.jpg