立即预约 立即预约
免费定制整装家居

免费定制整装家居

一站置家 全程无忧 一省到底
hide.png

当前位置: 首页 > 装修案例效果图 > 中海和平之门

中海和平之门 89平 北欧风格效果图

收藏
案例风格 北欧 案例户型 二居 案例面积 89平米
楼盘名称 中海和平之门 设计师 林凤装饰设计师 案例类型 改善性住宅

设计理念:中海和平之门89平2居室林凤装饰的设计中采用的是北欧风格,整体色调以深色为主。男主现在还是单身,所以在当时碰方案的时候是还是比较没有 顾虑的。他个人比较喜欢干净整洁的环境,然后个人倾向深色 所以我结合他的喜好设计了 黑白灰的北欧风格。

客厅
第1张
第2张
第3张
第4张
第5张
餐厅
第1张
卧室
第1张
卫生间
第1张
厨房
第1张
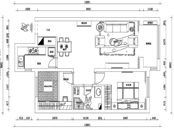
户型图
第1张
  • 案例详情

中海和平之门-89㎡-北欧风格-客厅2.jpg 中海和平之门-89㎡-北欧风格-电视背景墙.jpg 中海和平之门-89㎡-北欧风格-客厅.jpg 中海和平之门-89㎡-北欧风格-客厅3.jpg 中海和平之门-89㎡-北欧风格-首图.jpg

中海和平之门89平2居室北欧风格林凤装饰的客厅整体墙面颜色采用的是灰色,沙发是浅色的布艺沙发,电视柜采用的是蓝色和白的还有胡桃色套色搭配,茶几上蓝色花瓶,这样的颜色搭配让硬朗的空间更加有生机和活力。

中海和平之门-89㎡-北欧风格-餐厅.jpg

中海和平之门89平2居室北欧风格林凤装饰的餐厅采用的是胡桃色的餐桌餐椅,整体颜色上更加沉稳,餐桌边上的餐边柜也增加了不少的储物空间,在空间结构上也增加了不少的私密性,同时也起到了屏风的作用。

中海和平之门-89㎡-北欧风格-卧室.jpg

中海和平之门89平2居室北欧风格林凤装饰的主卧室整体偏现代一些,看着不像北欧那么简单,卧室的墙面采用咖色硬包搭配灰色的地板,深色的布艺床搭配胡桃色的床头柜,无论是从颜色上还有从格局摆放上,都让人有一种家的归属感。

中海和平之门-89㎡-北欧风格-卫生间.jpg

中海和平之门89平2居室北欧风格林凤装饰的卫生间墙面也选用了灰色的瓷砖 搭配了腰线让人视觉上感觉卫生间不在那么狭小。黑色的浴室柜和白色的坐便从颜色上更加呼应。也让卫生间感觉更加干净,便于清洁。突出了北欧的风格特点

中海和平之门-89㎡-北欧风格-厨房.jpg

中海和平之门89平2居室北欧风格林凤装饰的厨房由于厨房的空间比较窄,所以用了深色的小砖,搭配白色的橱柜,让空间显得有更加宽阔和明亮,在储物空间上也合理的规划,冰箱位置的摆放和洗菜盆还有烟机灶具的位置符合了人体工程学的行走路线。

中海和平之门-89㎡-北欧风格-平面图.jpg

案例设计师

林凤装饰设计师

设计师:林凤装饰设计师

从业时间:6年

设计理念:源于生活,生活因设计而改变!

预约设计师

算算你家装修多少钱

报名即享丰厚赠品,享半价装修

免费报价
咨询热线:400-656-9909
20190221103704574636.jpg

精品设计案例

20180612134930523248.jpg 服务号二维码.jpg